* A Distributed Proofreaders Canada eBook *

This ebook is made available at no cost and with very few restrictions. These restrictions apply only if (1) you make a change in the ebook (other than alteration for different display devices), or (2) you are making commercial use of the ebook. If either of these conditions applies, please contact a FP administrator before proceeding.

This work is in the Canadian public domain, but may be under copyright in some countries. If you live outside Canada, check your country's copyright laws. IF THE BOOK IS UNDER COPYRIGHT IN YOUR COUNTRY, DO NOT DOWNLOAD OR REDISTRIBUTE THIS FILE.

Title: Modern Schoolhouses: With Plans and Illustrations of the Newest in Schoolhouse Architecture

Date of first publication: 1919

Author: W. W. (Walter William) La Chance

Date first posted: Sep. 26, 2018

Date last updated: Sep. 26, 2018

Faded Page eBook #20180943

This ebook was produced by: Brenda Lewis, David T. Jones, Howard Ross & the online Distributed Proofreaders Canada team at http://www.pgdpcanada.net


 




See Page 56, Par. 53




See Page 207, Par. 161


See Page 87, Par. 133


See Page 63, Par. 75, 76


See Page 83, Par. 121½


See Page 79, Par. 114


See Page 77, Par. 107



See Page 48, Par. 30


See Page 84, Par. 128; Page 90, Par. 139


See Page 84, Par. 128, Page 90. Par. 139


See Page 83, Par. 122

See Page 62, Par. 69-70

See Page 201, Par. 151


See Page 213, Pars. 174-175-176-177


See Page 50, Par. 41


See Page 212, Par. 172



See Page 52, Par. 43; Page 56, Par. 53



See Page 211, Par. 167; Page 212, Pars. 168-169


See Page 201, Par. 152



MODERN

SCHOOLHOUSES


 

WITH PLANS AND ILLUSTRATIONS OF THE

NEWEST IN SCHOOLHOUSE ARCHITECTURE

 

ONTARIO EDITION

 

BY

W. W. La CHANCE

 

Member the Royal Architectural Institute of Canada

Member Saskatchewan Architectural Association

 

TORONTO

WILLIAM BRIGGS

1919

 

ALL RIGHTS FOR PUBLISHING IN FOREIGN COUNTRIES RESERVED

Copyright, Canada, 1919

by W. W. La CHANCE


AUTHOR'S ANNOUNCEMENT

The author specializes in school designing, having devoted the past ten years to this particular branch of architecture. During this period he has visited the principal schools in the United States in quest of the most modern methods of school designing and has amassed a considerable library and constructional data that will be of great value to any School Board which may contemplate the erection of a new schoolhouse.

The Public School concerns intimately more people than any other class of public edifice, because every citizen avails himself of its privileges in his youth and sends his children to it in later years; and again its design and construction unquestionably effects, for better or for worse, the health, happiness and morals of the pupils, whatever may be the effect of educational work carried on therein. It is all important, when one reflects how large a span of the life of the community is spent within the walls of its schools, and how important it is to surround its children with the most perfect environment for their hours of study. The schoolhouses of any community are the gauge of its enlightenment. They should be the best and most carefully-constructed buildings it possesses—not the most splendid and ornate, but the most perfect in design and most complete and thorough in execution and equipment. These facts granted, one can hardly lay too much stress on the importance of highly-skilled architectural service in the design and construction of your school buildings. It seems strange that our schoolhouses have been the last public buildings through which public taste has sought to express itself. Adults have regularly thought and planned first for their own needs rather than those of the children. I know of no class of building deserving of more sincere thoughtfulness and artistic treatment than those school buildings designed to accommodate our children who spend in them a great part of their waking hours during their early years. The safe and business-like thing to do is to engage the services of an architect who devotes his whole time to specializing in schoolhouse designing, and to let him work up a plan.

The planning of a one-teacher, country schoolhouse ought to demand, and will demand from any capable and conscientious architect, as painstaking consideration as a large city school. Upon School Boards of towns and cities I would urge with all emphasis that they give their teachers or at least a committee from the teaching force, a large share in helping to plan their schoolhouses. It is certainly poor economy to neglect to utilize the teachers' intimate knowledge of what is needed.

Many of the cuts and photos of plans illustrated herein have been built from repeatedly and have become "stock plans." They have gone through the "mill" as it were, and any defects in detail have been rectified. These plans and specifications may be purchased from the author in blue print form for the nominal fee of 1% based upon the estimated cost of the building, and will include all necessary working details.

There are in every fine building three leading points: its execution, its magnificence and its conception. The glory of the first is due to the builder, the second to the owners, and the third to the architect. The services of this office are at your disposal.

Sincerely yours,

Architect.



INTRODUCTION

Within the last decade there has been a remarkable improvement in the school buildings of cities and large towns, and also in the rural districts. Many of these now approach the ideal.

There has been an even greater need for standard regulations as a help for school officials and others responsible for the building of schoolhouses of one, two and three and four rooms in rural communities. To give this help this book has been prepared.

This pamphlet is the result of careful and prolonged study of rural school architecture, with constant reference to economy and the highest degree of utility. The one-teacher, rural schoolhouse is the oldest and most primitive type of school in the country. More than half of the children are educated in rural schools. The country school needs a healthful environment quite as much as the city school. In general, good architecture and good sanitation have been much more carefully studied and much more frequently secured in the city schools than in the country: but the sanitation of the rural school is in every respect as important as that of the city school.

The expense of things which really affect the health of the pupil in school should be estimated in terms of child life, child health, and human efficiency: and only for convenience should be reduced to dollars and cents.

It will be obvious from a study of the various examples of modern school buildings illustrated in this pamphlet that the complex features of modern education demand buildings, including accessories and equipment of a new and improved type. Here, indeed, architects are afforded an opportunity to demonstrate their abilities that is probably surpassed in no other phase or department of practice. Heating, ventilation, lighting, humidification, and the many sanitary features must be fully mastered by the practitioner, at least as regards general conditions and requirements, if not in actual detail.

All this is apart from and in addition to the artistic skill as a designer which the architect must now possess in order to have his work approved of. He must ever keep before him, as a first essential, the requirements of comparatively low cost—in a word, a modern school building of the highest type, possessing at the same time artistic merit of no mean order.

The tendencies of modern education in our Public Schools have added more complications to the architect's already complicated profession. While the ordinary elementary school has not become more complex, except for the enlarged activities of the infant class, the High Schools have seen greater progress. In the large cities where there are several High Schools, these have been separated into two classes: The English High School, and the Commercial and Manual Training High School. In the smaller towns all the various courses of study are necessarily included in one building and it is the purpose of this article to call attention in a brief way to some of the essential features to be considered by the architect and by School Boards who may be considering the erection of a modern High School.

Another feature which causes complication is the wider use of the school building for various social and civic activities such as the Boy Scout movement, and for summer schools and lectures. The schoolhouse door must swing open freely for all who would work for the Public Good and it must be so constructed as to invite to its shelter all who seek for a larger vision in anything and everything which may contribute to the welfare of the community.

This publication is itself a compilation of facts and information drawn from as many sources as possible. The illustrations are taken from actually-existing buildings, the necessary data from which a sanitary building may be designed. It does not attempt to suggest the lines upon which the perfect school of the future will be planned.

In its arrangement the object has been, first, to give a general survey of conditions under which education is carried on, and an idea of the uses of the different rooms, their general requirements and equipment and their relation one to another; and secondly, by giving the plans of a number of recently-constructed buildings, to show the different methods that have been utilized to meet these requirements.

Questions which affect the health of the pupils, such as lighting, heating, ventilation and sanitation, are considered at length.

The plans are in all cases given with the permission of the architects who designed the buildings. Their courtesy and readiness to assist and to give information, has alone made the production of the pamphlet possible.

Architect.


MODERN SCHOOLHOUSES

CONSTRUCTION AND SITE

The school building should be well constructed of brick, stone, hollow-tile blocks or of concrete blocks, with similar materials used in the interior to carry walls and partitions. The entrance should have a vestibule or covered porch, with doors swinging outwards. Separate entrances and separate exits to closets should be provided in schools with more than one teacher. Every school should have, as a recreation room, a basement, at least seven feet high in the clear; ceiled with wood or metal sheathing, to keep the floors above warm (plaster obviously objectionable); and floored with cement or hardwood. The basement ceiling should be four or five feet above the ground level outside, so as it may receive as much sunlight as possible.

Key:

A—Total Number of Pupils Enrolled

B—Total Number of School Buildings

C—Total Number of Classrooms

D—Total Investment for Buildings & Equipment

E—Total for Operating & Annual Increase for School Propt'y

F—Total Number of Teachers

G—Number of Inspectors

H—Total Number of School Boards

ProvinceABCDEFGH
British Columbia651188492129$9250000$337663217414575
Alberta1077272471349714165097[1]72434154265342736
Saskatchewan1275904675498711957641035219587644087
Manitoba1065883650904136495297225890
Ontario564992679513386506773981195700
Quebec49071872881728435256055250000017284541646
New Brunswick7178222558
Nova Scotia111981185728564294751136145730451803
Pr' Edward Isle1819047360011000340006008470
Newfoundland        

INCLUDES SCHOOL BUILDINGS AND SCHOOL GROUNDS

ASAT. 1919.

 

1. Site.—The first consideration in selecting a site for a school building is its accessibility. It should be located where the largest number of pupils can reach it most conveniently, and where the adults of the community may make the largest use of it. It is a small matter and of little moment that a few of the children be compelled to walk a little further than others if a better and larger school ground can be secured. No part of a school site should be within five hundred feet of steam railways or manufacturing plants, livery stables or other buildings which may be a source of unhealthy conditions. There is a reasonableness in the demand for central location, but only when more important demands are not in conflict with it. It is far more important, for example, to have well-drained school grounds, where the opportunity for securing a sanitary water supply and toilet system is good, than it is to give the preference to a location nearer the center of a district where these sanitary necessities are not readily procurable.

 

2. Size of Grounds.—No fixed rule can be made for fixing the proper size of school grounds. Rural schools should have not less than one acre of ground, while High Schools require at least three acres. To-day, by reason of the increased number of boys indulging in baseball, football, basketball, track meets and all the open air games that growing boys long for, the school grounds should not be skimped. Athletics in the rural school has had a marked tendency to check the flow of the human tide toward the cities.

The country boys are beginning to realize that home offers every advantage known to the city youth and gives as well, as added capital, the wonderful effects of a life in the open. Boyhood is not the only athletic beneficiary in rural school life. The girls, too, go in for basketball and for gymnastic exercises that may be enjoyed in the school. The country schools will never be able to do their work properly unless the amount of ground assigned to them is increased. Play grounds, agricultural work, fruit growing, and forestry—all legitimate demands upon the rural school require more land than is usually given rural schools.

 

3. Dimensions.—The best form for the school grounds, considering shrubbery, grass, walks, play grounds and gardens is an oblong.

One acre tracts are ten rods front by sixteen rods deep.

Two-acre tracts, sixteen rods front by twenty rods deep.

Three-acre tracts, sixteen rods front by thirty rods deep.

Four-acre tracts, twenty rods front by thirty rods deep.

 

4. Ground Air.—In selecting a site for a rural schoolhouse the following factors should be considered: No site should be selected that will not offer a good outlet for tile drains set well below the walls of the building to keep the basement and garden in good condition. A wet, swampy piece of land is not only a muddy, dirty place, but it also introduces dangers from ground air and moisture that will always prove troublesome and unwholesome. The air, on account of its great weight, presses into the ground to a much greater depth than is ordinarily supposed. When the air above the ground becomes colder than that in the ground, and this is true at night during warm weather and even during the day during cold weather, the heavy air above the ground will displace that in the ground, and will drive it out at the least point of resistance. Since the ground underneath and about a schoolhouse is drier than that not covered, the ground air is driven from all directions towards the schoolhouse and by reason of the fact that heat escaping from the building will cause an upward draft, this ground air is easily drawn into the rooms. Ground air contains a far greater percentage of carbon dioxide and other noxious gases than is ordinarily found in air above the ground, these being produced through the agency of the bacteria acting upon decaying animal and vegetable matter in the soil. Moreover, ground air is generally saturated with moisture, and as it rises in the school room, especially at night when the building is cold, this will be deposited on the walls, blackboards, and floors, so that all wooden parts of the building are rendered liable to decay and the air in the building will be stuffy and cellar-like.

 

5. Aspect.—The point toward which the school should face should of course be determined by the position of the class rooms, whether placed in front or back of the building, in order to obtain the most suitable aspect for their windows. During school hours it is essential that every class room should have an abundance of light, and that sunlight should have direct access to every room, at least during some part of the day.

 

6. Sunlight.—The sun in the early morning and the late afternoon, being then lower in the sky, will naturally shine much further into the rooms than during the middle of the day. It is of course hardly possible to plan that every class room in a large building should have an equally good aspect, but as far as possible it should be arranged that none of the regular class rooms should face the North, excepting in the case of the studio and art rooms, which require steady and diffused light. The advantages of the sun from the point of view of health, are so great that they should outweigh a small amount of discomfort on a few days of the year.

 

7. North and Northwest Aspect.—The North and West—These aspects should never be used for class rooms, as they practically get no sun until late in the day. If it is necessary that any of the rooms should have this aspect, let it be those which are occupied seldom or for a short time only. This side of the building could be taken up by the windows of the hall, studio, chemical laboratory, committee rooms, staircases, or corridor.

 

8. West and Southwest Aspect.—The West and Southwest—These aspects have an advantage in cases where it is preferred to have the direct sunlight into the class rooms at a time when the rooms are not being used, since it is not until the afternoon that the sun will come into these rooms, and these rooms will get hot in summer while missing the early sun in winter.

 

9. East and Southeast Aspect.—East and Southeast—Rooms looking to these points get the best light all morning. The sun shines into the room, making it cheerful, bright and comfortable in cold weather, while in summer the sun is off before the hot part of the day. The early sun, too, has not the same power in the morning as later in the afternoon when everything has been heated. In rooms looking due East the level rays of the sun, except in mid-summer, shine right into the farthest corners of the room. For small children, kindergartens especially, this aspect is very valuable. On the whole, perhaps the best aspect a school can have is that from East to Southeast.

 

10. Northeast and East.—For schools where teaching is carried on both morning and afternoon, the sun is off in the morning and in the late hours will shine a very short way into the room. It is always well, especially in arranging exits of a school building, to take careful note of the prevailing wind in the locality, so that the doors should be screened from it.

 

11. Play Grounds.—The grounds should, as far as possible, be exposed to the direct sunshine during the school year, to prevent a damp or muddy surface. For this reason it is best to put the building on the West or North side of the school site.

BASEMENT

 

12. Basement.—Economy and practical sense suggest a basement under the entire school building, for it allows of many advantageous combinations of arrangement and the use of every foot of available space. By keeping the basement floor well up to the grade line, with not more than three feet of excavation, and with a ceiling not less than ten feet in the clear, ample room for the distribution of plumbing pipes and heating ducts is provided. A well-considered basement, with good means of ventilation and good lighting, provides means of ventilation and under-drainage and is one of the most efficient means for preventing the rise of moisture in the walls and ground air rising into class rooms and corridors.

The schoolhouse basement is of incalculable benefit to the community, since advanced ideas in education have made it more than a coal hole and a repository for all the trash and junk that accumulates during the school term. Instead of being a catch-all, the basement now serves as a work-shop for the boys who have adopted vocational training as part of their school work. The girls, too, utilize the basement for their sewing and cooking rooms. The vocational training departments of the consolidated schools have proved popular innovations, and it is believed stand largely for the increased interest in general school work.

 

13. Drainage.—It is important in connection with the foundations of school buildings to see that means are taken to prevent as far as possible the conveying of moisture from the earth through capillary attraction and the subsequent conditions, "sweating" and cellar-like atmosphere so noticeable when the school is opened in the morning. It is a mistaken idea that if both floor and walls of a basement are thoroughly cemented, no water can get into it. Contrary to the belief of a great many people, it is not impervious to water, and under a comparatively slight pressure water will readily find its way through well-mixed concrete, unless waterproofed by some waterproofing compound. Unless, therefore, those who introduce basement floors into school buildings have placed the building on high land, with the ground sloping from it rapidly in all directions, they must encircle it with a drain as indicated in Fig. 1.

Drainage should be done with ordinary field tile, laid with slightly open joints, having the upper joints covered with a 2" strip of waterproofed paper or a layer of loose straw about 6" deep before being refilled with earth. The water finds its way into the drain from the bottom of the drain. The gravel, straw or waterproofed strips of paper over the top joints are to prevent the surrounding soil and small gravel entering the tile from the top. This should always be placed a little lower in the ground than the footings, so that the water line will never reach the walls for any length of time. It is never well to run drains under a basement floor, especially if they connect with a sewer. A drain outside will relieve all pressure from surface water. In extreme cases it is proper to place the drain about six or eight feet outside the foundation walls, and then, if the tiles are sufficiently large, and the pipes have sufficient fall to its outlet, the rain water down pipes from the roof can be connected to the drain with hub and spigot tile pipe with cemented joints.

 

15. Damp Course.—There should be a damp course of some suitable material, such as slate set in Portland cement mortar, asphalt or a coating of plastic cement having a strong bituminous base, or a layer of water-proof paper, bedded in the walls of basement or piers, otherwise dampness will find its way into walls above by capilliary action.

 

16. Class Rooms.—The comfort and health of a school depends largely on the proper arrangement of its class rooms. They may be regarded as the units of which a school building is composed, to which the other rooms are subsidiary.

 

17. Elementary School Rooms.—The standard size of elementary school rooms should be six hundred and thirty (630) square feet of floor area, with a ceiling height of not less than twelve (12) feet. The most satisfactory dimensions of such a room are:—

 

18. Schedule of Average Sizes of Class Rooms.

Rows of desks.
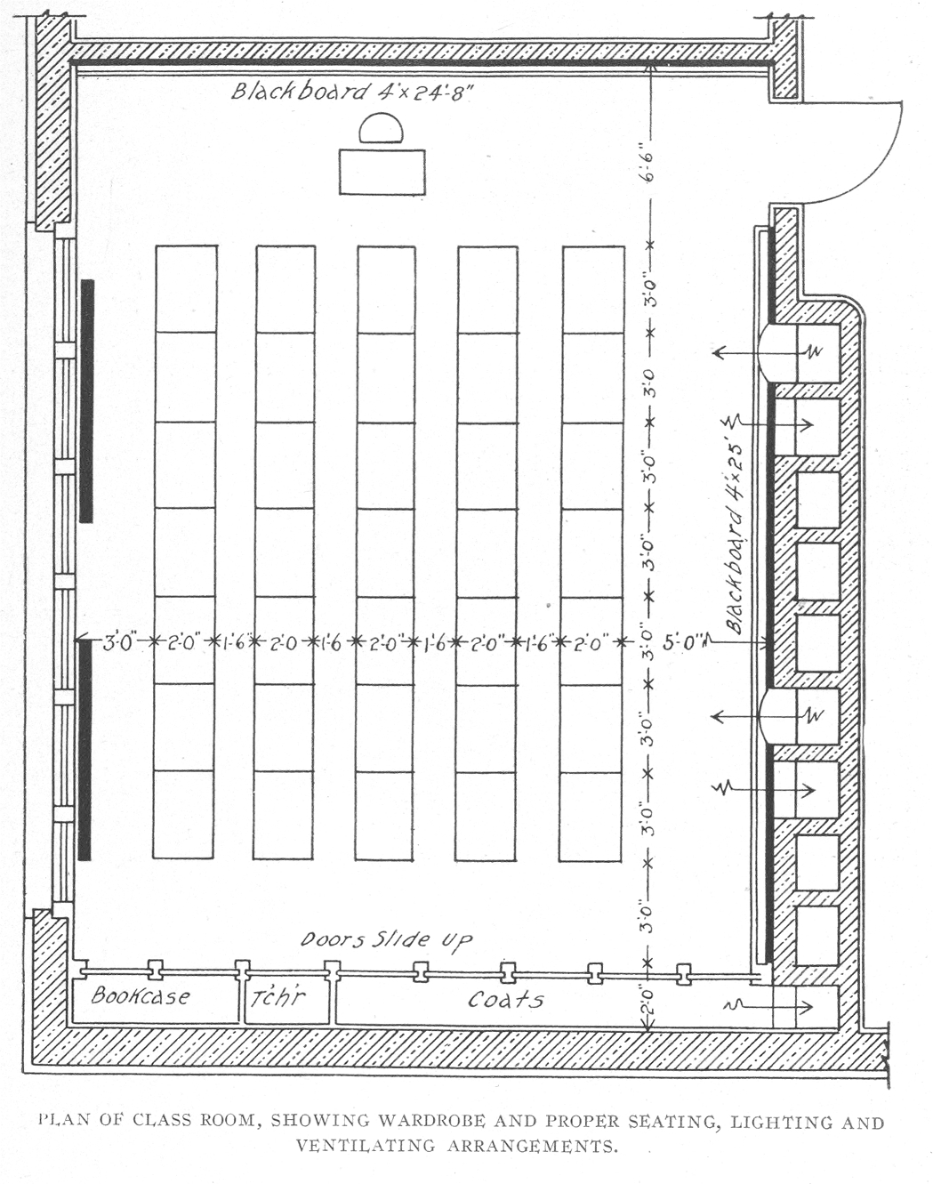
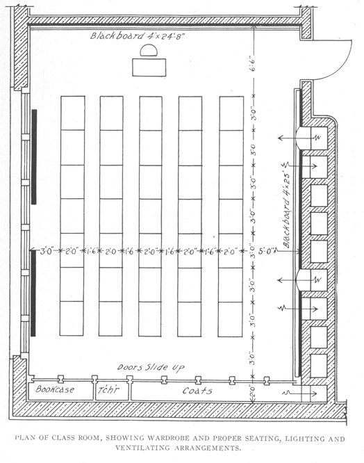
For 24 pupils:—19' x 24' x 11'-0"4
For 28 pupils:—19' x 26' x 11'-4"4
For 30 pupils:—23' x 24' x 12'-0"5
For 35 pupils:—23' x 27' x 12'-0"5
For 40 pupils:—23' x 30' x 12'-0"5
For 42 pupils:—23' x 30' x 12'-4"Primary.6
24' x 28' x 13'-0"Grade.6
For 48 pupils:—23' x 33' x 12'-8"Primary.6
24' x 32' x 13'-0"Grade.6

 

19. Desk Spacing.—Where four or five rows of desks are placed the above arrangement will permit of desks 1'-9" wide with aisles between of 18" having 3'-6" passage along window side. 4' passage on wall at pupils' blackboard with not less than 8' clear space at teacher's end and 4' behind rear desks.

Where 6 rows of desks are placed the spacing in a room 23' wide will be as follows:

1'-9" width of desk.

1'-4" space between desks.

2'-10" passage at window side.

3'-0" passage at inner wall.

In this latter case it will be seen that the dimensions of passages are somewhat restricted and that a room 24' wide could be better spaced. In rural schools where room heaters are used some of the desks will necessarily be omitted.

 

20. Height of Rooms.—No class room shall be less than 12' high throughout, except in rural school rooms for less than 29 pupils, where the height may be 11' throughout. Rooms partly ceiled on collars should be 10' high to wall plate, and 13' to ceiling. The flat ceiling should extend over at least half the area of the room. In no case may a class room be left open to the ridge.

These sizes apply to all rooms taught by one teacher. While the height of ceilings is less than that recommended by some authorities, it is a safe and economical standard for elementary schools, especially for rooms above the first floor.

One of the objections which will be urged against making the ceilings twelve feet in height is that it will deprive the pupils of air space and make the problem of ventilation more difficult. This objection may be fully answered when it is stated that any air space above twelve feet six inches in height is of no use as regards ventilation, since it remains unaffected by movements of the lower air in the room; nor is it required for light. Further, pupils need the same amount of fresh air per minute, whether they are in a large or small room, consequently after the initial supply is vitiated the same amount must be introduced in either case.

Where forced ventilation is used the only difference would be supplying a room twelve feet high and one twelve inches higher, and this difference is so small as to be negligible. As an offset to any further comments it may be well to indicate the advantages to be gained by lowering the ceilings and increasing the floor area of the class rooms.

In the first place the cost of the building should be considered. Every foot saved in the height of the building will reduce the cost much more than a casual calculation would indicate. Every foot added to the height of a class room adds so much expense in keeping it in repair, and especially in heating it, also heavier walls, higher chimneys and vent flues and longer stairways are required.

From the hygienic point of view there is no special disadvantage for boys, but it is an added hardship on adolescent girls. In case of fire there is also increased danger in high ceilings.

 

21. Seating Capacity.—The seating capacity of each class room with a twelve foot ceiling shall be determined by allowing not less than eighteen (18) feet of floor space for each pupil. The above-mentioned size of class room is recommended. However, class rooms having fifteen feet of floor space to each two hundred cubic feet of air space will be approved.

SIZE OF SINGLE DESKS

Height of seat.Back to front.Across width.Age Accommodated.
12"21"19"5 years to 8
13"22"19"8 years to 12
14"24"21"10 years to 15
15"26"21"12 years to 18
16"27"24"16 years to 20

 

22. Width of Class Room.—The width, where unilateral lighting is used should never exceed twice the distance from the floor to the top of the windows.

 

23. Lighting of Class Rooms.—Sunless rooms are apt to be dark and cheerless and recent experiments seem to show that contagious disease is mostly spread, not by germs flying in the air, but by direct carriers such as insects, food, drink, or mucous. Colds seem to be passed from one child to another through minute drops of mucous which are sprayed into the air in coughing or sneezing. The best way to avoid contagion is to flood every corner of the room with sunshine and so render these drops sterile.

In Ontario during the winter season twilight begins comparatively early in the afternoon. Where the shadows are long at noon and where cloudy, dark days are of frequent occurrence, it is probably a good plan to place the school building half way between the points of the compass so that all rooms may have sunlight during some part of the day.

 

24. Light Area Required.—School experts seem to agree that each class room requires an amount of window surface equal to one fourth of the floor area of the class room exclusive of mullions, sash, meeting rails and transoms. To ensure efficient lighting of the desks and blackboards by merely supplying the required amount of glass area is not enough. The position of the windows themselves have a great influence upon the complete lighting.

 

25. Unilateral Lighting.—Most authorities agree that class rooms should be lighted from the left side of the pupil only. With unilateral lighting it is far easier to arrange for adequate blackboard space and to place it opposite the light. Light from behind the teacher or pupils should under no circumstances be allowed. The glare of the light directly in the faces of pupils will cause discomfort and injury.

 

26. Breeze Windows.—It is sometimes deemed expedient to place one or more "breeze windows" high up at the back of the room for ventilation purposes only, to obtain a through draft, and protect these from the direct rays of the sun. There is no objection to this.

 

27. Bilateral Lighting.—The question is often asked: Why not have windows on both sides of a class room, for it is not possible to get too much well diffused light in a class room? Until very recently school buildings were constructed this way, and it is still very hard to convince some people that lighting from one side only is better than lighting from both sides.

 

28. Objections to Bilateral Lighting.—Suppose we consider a class room with East and West exposure, with the same number of windows on each side, located in the same relative positions. At 10. a.m. the light is stronger from the East than from the West, and the line where the light from each side is equally strong is well toward the west of the room, this line will shift towards the East side the rest of the day, reaching the center at noon. But at any time in the day there are always two shadows on the hand and pen. These shadows are of equal intensity only at this shifting line of equal light. To the left or right of this changing line one shadow is always stronger, and hence it is impossible to seat all pupils so as to give them equally good light for writing. There is no desk in the whole room where double shadows of the hand and pen may not be seen. For this reason it is impossible to seat all the pupils in a class room with bilateral lighting without imposing some slight hardship on all, and a serious hindrance on something less than half of them. There are other reasons why bilateral lighting is not to be preferred. The best place for the blackboard is opposite the source of light, and hence it should be placed on the wall of one side of the class room. A common custom has been to place the blackboards between the windows on both sides. Such a setting has been responsible for an untold amount of eye strain, headaches and habits of inattention. It is rational to conclude, then, that if unilateral lighting were not in accordance with the demands of hygiene it would still be wise to locate all the windows on one side, so that the other may be used for blackboards.

 

29. Sky-lighting.—Contrary to the usual belief, light coming from above the desks introduces more disturbing shadows than that coming from the left. For this reason alone lateral lighting is generally preferable in class rooms to sky-lighting, though the latter is often helpful in cities where tall buildings obstruct the light, or where troublesome reflections from outside of buildings are likely to overstimulate and fatigue the eyes.

 

30. Prismatic Glass.—In cases of existing schools where the class rooms are unsatisfactorily lighted, the illumination of the room can be greatly increased by the use of prismatic sheet glass, by means of which the light rays are caught up and thrown horizontally across the room. Care should be exercised to see that the glass is correctly set in position relative to its prisms so as to get best results.

 

31. Position of Windows.—In placing the windows it is of great importance, first that there should not be large space of wall showing between the back of the room and the first window: secondly, that there should be no wide piers between the windows to cast heavy shadows across the room. It is not possible to construct brick, tile or stone piers of sufficient strength in a building of any height that will not interfere considerably with the light. In order to meet these objections successfully, iron mullions may be used. (See Fig. No. 4.) In this way it is possible to assemble a cluster of windows together, at the same time supplying sufficient strength and more light.

 

32. Window Mullions.—Assuming the standard size class room to be 24' x 32' x 12'—twenty-four feet wide, thirty-two feet long, and twelve feet in height—the glass area to be equal to one-fourth of the floor area, we have one hundred and ninety-two square feet (192 sq. ft.) of glass area to place in a wall that is thirty-two feet long. If the windows are set four feet from the floor line and the tops of the windows extend to within six inches of the ceiling of the class room the height of the windows would be eight feet. Thus to get the amount of window surface demanded by the rule, twenty-four feet in length of this wall must be glass. This would leave only eight linear feet of wall space unused. The height of the window sill plays an important part in the question of lighting.

In the first place it should not be below the level of the tops of the desks, neither should they be so high that children are unable to see out. There is a dreary appearance given to a room where the window sills are too high, also a loss in lighting. School experts seem to agree that window sills set three feet six inches from the floor line to three feet nine inches, and four feet, should be regarded as a maximum height.

 

34. Exposed Beamed Ceilings.—Coved ceilings and exposed beams should be omitted in class rooms. They obstruct free circulation of air and form dead air pockets at the ceiling line.

DAYLIGHTING FOR CLASS ROOMS

 

35. Glare.—Any brightness trying to the eyes—direct sunlight, reflected sunlight that is too bright on window, wall, ceiling or desk. A broad expanse of blue sky. Direct passing through translucent shades, etc.

 

36. Brightness Contrast.—A patch of sunlight on surface area adjoining a normally-lighted area. A shadow adjoining a normally-lighted area with distinct line of demarkation.

 

37. Specific Brightness.—A determined condition of brightness. The eye can see better with low specific brightness than with high.

 

38. Quality of Light.—There is a definite light condition which permits the normal eye to act without strain. To depart from this condition through obtaining more light, less light, or variation in light color, decreases the quality.

 

39. Reflecting Surfaces.—All surface areas in the room—walls, ceiling, floors, tops of desks, pictures, maps, etc.

 

40. Specular Reflection.—Image reflection as from a looking-glass. Concentrated reflection which reflects in a concentrated and direct manner. Reflection from bright surfaces which furnish glare or dazzle.

 

41. Diffused Reflection.—Reflecting in a spread-out manner so that no image appears. Reflecting without glare or dazzle.

With these definitions in mind, the following set rules become intelligible.

Windows should pass a maximum amount of light without the direct rays of the sun or a broad expanse of blue sky appearing. The light so passed should be deflected through the room in a diffused and evenly-distributed manner, so that glare and brightness contrasts do not appear. All reflecting surfaces in the room must cause diffused reflection and not specular reflection, and be finished so that quality in light color is not lowered and a specific brightness occurs which permits the eye to act normally and restfully.

Is this condition possible with suitable window openings and opaque semitranslucent or translucent fabric shade?

With fabric shades, it is impossible to properly regulate or control light. A sufficient and proper light near the window openings means too little light at points further removed. In other words, a proper and even specific brightness throughout the room cannot exist.

Again, by covering the entire window area with opaque or semitranslucent shades in order to cut off the direct rays of the sun, so as to avoid strong brightness contrasts, too little light is admitted. To allow any of the direct rays to enter through covering only part of the window area with the shade, brings about the condition of strong brightness contrasts, which it is always necessary to eliminate. Translucent shades should never be used, as they always create strong brightness contrasts.

With fabric shades, no matter how the window is placed, light can never enter properly. Light should always come from above down upon the work surface, so that lines of demarkation cannot occur, no matter where one may sit. With fabric shades all light must either pass horizontally through the room, or be reflected from the floor up, to be in turn reflected from the ceiling. These conflicting angles of light cause many lines of demarkation, and necessitate a constant refocusing of the eyes, even in the limited space of a book page.

There is only one way to properly daylight a room. There should be at the window a device which will pick up all light that strikes the window opening and deflect it to the ceiling, from where it is reflected so as to fall evenly, perfectly diffused, throughout the room. In this way all light is reclaimed and used and not blocked as with fabric shade. In addition to this, perfect ventilation can be secured, and windows may be opened without fear of direct draught and ensuing colds. Such a device, endorsed by the medical profession, is obtainable, so the impossible is not asked.

If the light is thrown to the ceiling, it is evident that this should be a maximum reflecting surface. A proper maximum reflecting surface can only be obtained through using white which must diffuse and not be specular in character, so as not to dazzle. The ceiling, therefore, should be painted (not kalsomined) a dead flat white. This will furnish a strong white light. Too strong, in fact, unless toned by some neutral light from the side walls. To secure this, all side walls should be painted soft neutral tints, dead flat in finish (this prevents specular glare) which will be pleasing and soothing in appearance. A soft, yellowish green has shown by scientific tests to be the best color.

Special Brackets.—Special brackets are on the market which allow the lighting to be partially controlled. These fit close to window frames, and can be extended as well as adjusted to height by travelling sockets. This shade is of one piece when rolled, and can be left at either top or bottom of the window.

Color of Fabric Shades.—A great deal has been said about the best color for fabric shades, and many experts agree that a light "bisque" makes a very satisfactory color, not light enough to annoy or dark enough to exclude the light. Hollands are to be avoided on account of the reflections cast.

BLACKBOARDS

 

42. Blackboards.—School work is linked up so closely with blackboard work that the blackboards to be used in school rooms become a matter of first importance. While durability is of course an essential requirement, the matter of a smooth writing surface, quick erasing, and the absence of glare are important considerations. In modern school construction there are a variety of methods that can be adopted to obtain good blackboards, but it is not wise to adopt a method that offers less expenditure when a slightly larger expenditure will produce better school work as well as longer service.

 

43. Slate Blackboards.—If it is possible to use slate for blackboards it should be used, for when carefully set it will prove more satisfactory than any sort of manufactured blackboards. The slate should be free from ribbons or veins. Most slate blackboards are dyed to give them a darker color. Slate comes in various widths, from three to four feet, and in lengths not over six feet. Thickness varies from one-quarter inch to three-eighths inch, and weighs about six pounds for superficial square foot. In placing orders for slate blackboards School Boards should stipulate delivery to be insured against breakages, for this frequently happens and causes delay and annoyance with railway companies in getting refunds and deliveries.

 

44. Wood Fibre Blackboards.—There is another preparation which is being used with considerable success, a wood fibre, built up in five plies, laminated together under tremendous pressure, producing a solid, sturdy base, kiln-dried and coated on the back with an asphaltum preparation to repel any moisture that might come through the outside walls. The surface is composed of a liquid-slating and carborundum, which is harder than steel. The abrasives are applied in various degrees of hardness so as to have just the right "bite" into chalk for rapid, legible writing. These blackboards cost considerably less than slate, but no more than most composition boards. They come in widths from three feet up to four feet and in lengths from six feet up to sixteen feet and weigh, when crated, about one pound per superficial square foot. Colors are black and specially blended green. While black is usually selected by force of habit, yet green has nearly twice the light reflecting power. The exact percentages are green, 6.2%; black, 3-5%.

 

45. Composition Blackboards.—One of the methods of preparing a blackboard without a great deal of expense is to use a prepared slate cement which can be mixed and spread on as ordinary plaster. It is applied with a trowel on a base coat of hard plaster which makes an even concrete slate without joints. The same material is prepared in slabs, reinforced with a wood or expanded-metal backing ready to put up, and can be obtained in lengths up to twelve feet. Any carpenter or handy man can put them up. There is another material composed of ground slate and a binding material of carborundum which is applied to a reinforcement of either wood or expanded-metal lath in a paste form and troweled on by hand in four separate coats. Colors green and black. These cost more than various forms of the veneer or the preparation of pure spruce pulp. If it is put on in the proper way it is permanent and will not buckle or draw away from the wall.

 

46. Glass Blackboards.—Glass blackboards are still better, but they are very expensive and it is not likely that they will be used for the ordinary school. They are prepared as follows:

A plate of heavy glass is ground on one side lightly but thoroughly and evenly, and it is slightly roughened on the other side, then this roughened side is painted the exact color the board is to have. By setting the painted side against the wall the color is reflected through the glass to the other side and seems to be an integral part of the structure of the glass. The ground side is the surface upon which the writing will be done. The grinding roughens the glass, which causes the chalk to leave a clear, distinct mark.

 

47. Liquid Slating.—The liquid slating, so called, often put directly upon the plastered walls, may prove fairly satisfactory for a time, but the plastering will soon begin to chip and discolor, and after some usage the board will look spotty and the crayon marks will not leave a clear, distinct impression. In the long run it is usually more economical to use a prepared cement blackboard or a wood-fibre board as previously explained.

 

48. Color of Blackboards.—The matter of color has been given considerable attention recently by school authorities. Where a slate blackboard is used, black, of course, is the only color possible and for that reason black became the accepted color for school boards without much thought being given to the subject. But where a manufactured board is used or a composition material is employed it is, of course, possible to have a color other than black and dark green is being used and recommended by the manufacturers. Green offers the same contrast to chalk as black, but is much easier on the eyes, resting them where black is liable to cause eye strain. It also adds color and cheerfulness to the school room. The makers of manufactured boards are careful to use a good shade of green, but care should be exercised if a composition material is used and the green is desired. Too much green, or a green in which yellow predominates should not be used, and care should be taken in preparing the mixture that a dark shade is secured.

 

49. Heights of Blackboards.—A district school must accommodate the children of all the elementary grades, and hence blackboards must be placed within the reach of the little folk. The mistake of placing blackboards so high that the pupils can not use them is a very common error, which those who are constructing rural schools should seek to avoid. If the blackboard on the wall opposite the windows is set from twenty-four to twenty-six inches from the floor, the little folk will be able to use the lower part to advantage. If a board is three feet six inches wide the larger pupils will have no difficulty in finding space at the proper height for their work. One can not do good work on the blackboard in a stooping position, and the work can not be so readily seen if it is low. The blackboards on the wall back of the teacher's desk will prove more satisfactory if set three feet above the floor, and made four feet wide, for this space will be utilized by the teacher for illustrating work and for the assignments she may wish to indicate upon the board. The rear end of the room should also be used for blackboards. The placing of this board may correspond with that at the other end of the room, that is, it should be set three feet above the floor line, and it should be four feet wide. The irregular line of the boards will not be disagreeable, despite the opinion of some architects. No blackboard should be placed on the window side of the room. There should be no wall space of any consequence left on the window side upon which blackboards could be placed. There will be no appreciable space between the windows, and in no case should this space be used for blackboard. It will not receive sufficient light and it will be badly placed with reference to children seated at their desks. Two ends of the room and the side opposite the windows will give enough space for blackboards.

 

50. Chalk Troughs.—Chalk troughs under the blackboards should be wide enough to hold the erasers as well as the chalk, and should be deep enough to hold the chalk dropping from the eraser and the board's surface. If a strip of wire mesh is laid in the trough it will keep the erasers from gathering the chalk dust in the trough and thence scattering this over the floor. This device will cost but very little and will prove helpful and acceptable. Metal chalk troughs as above are now being manufactured.

 

51. Exhibition Boards.—Exhibition boards consisting of twelve inches of cork linoleum (preferably a dark green or brown color) secured by strips, can be placed conveniently along the top of the blackboards.

PAINTING AND DECORATING

 

52. Painting and its Effects Upon Pupils.—Every color-shade and hue transmits through the eye an effect on the brain. It is therefore of the greatest importance in school buildings where young children and teachers spend several hours each day that the decoration of their surroundings should be most carefully chosen. If scientific attention is given to this subject the whole morale of the staff and pupils will be improved, and consequently the general efficiency of the school greatly increased.

Color schemes should be worked out for individual cases, even though similar or standard shades may be adopted. It is therefore not possible in this general article to give detailed recommendations. A few points, however, may be of value.

The available light should be distributed to the greatest advantage so that no strong rays from one direction affect the eye-sight. All paints used should be made from non-poisonous ingredients and of the utmost sanitary value. It is a great mistake to apply low-priced water paints which cannot be washed, or lead and oil paints containing poisonous ingredients on the interior walls of school buildings—apart from the fact that both of these paints as they wear transmit dust and germs into the atmosphere.

Paints used on walls should always be made washable in order that they may be cleaned or disinfected. Colors should never be harsh or noticeable, but always of soft, delicate shades suited to the lighting so that a cheerful appearance is given to the room without a noticeable reminder of the color scheme.

Rooms fronting South should be finished in cool green or grey colors. North rooms which do not get the sun, and which may appear cold should have delicate pink or buff shades and so on, depending on the hours of sunlight in the room. In class rooms no high gloss paints or varnishes should ever be used nor should any pattern or stencil work which would distract attention be embodied in the decorative scheme.

School children will mark on the walls as far up as they can reach. It is therefore most necessary where space is not taken up by blackboards, to have a good washable dado around the lower part of the walls for a height of at least five and one-half feet.

The great amount of blackboard space used in class rooms tends to absorb much light. On dull days when they are not used it has been found that great relief can be secured by having light shades or curtains which may be lowered over the blackboard. An increase of from forty to fifty per cent. in efficient distribution of light may be had by this arrangement.

Hardwood rather than soft wood trim should be used wherever possible in a school, and it is usually an advantage to finish woods in the lighter natural shades with suitable fillers and varnishes.

Basements of schools which are used for recreation purposes, coat rooms, etc., should be carefully dampproofed, as apart from the sanitary value of the dampproofing, a great economy may be achieved in the heating of the building.

Concrete floors should always be made dust proof and hardened, for like sanitary reasons. This can be achieved by a very simple application of waterproofing compound in a liquid form.

ROOFS AND ROOFING

 

53. The old-time belfry is passing. School buildings without towers or belfries are becoming increasingly common. It gives one a good deal of relief to see that we are slowly getting rid of these useless, impertinent and expensive towers which have for such a long time weighted down many of our school buildings, shocked all artistic natures, and wasted the public money. They are remnants of the time when schools and churches were organically connected, and they remain with us as a reminder of that fact. Generally they are unsightly, dangerous in time of storms and expensive beyond all possible need. In country districts and villages this tower has been continued as a belfry, but there is now little need of a schoolmaster regulating the time of a town, and a hand bell or gong will serve all other purposes for which a large bell is now used; but even if a large bell is demanded for merely sentimental reasons it can be placed in some inconspicuous place rather than in an expensive tower, which is usually wholly out of harmony with the rest of the building. There are a few architects in our country who occasionally use towers on their school buildings and make them so completely harmonious that they seem in keeping with the structure and are apparently needed, but the day of the tower on school buildings is in its twilight. It is certain that school bells are going out of fashion, and much relief will come when they are forever gone. It would be far more rational and would be more pleasing to the young people of to-day to put the cost of towers and bells into a piano or phonograph for the assembly room. A few buildings with towers are illustrated in the plates, not to show the style of architecture which includes that form of decoration, but on account of some special excellence in the design of those buildings in other respects.

Flat Roofs.—There is in process of development a form of school building, numerously illustrated in this work, which might with propriety be designated a distinctly new type. I refer to that form using a flat roof. This has been developed to meet the desirability of relieving large buildings of a heavy and expensive roof which increases fire risk and demands for support heavy walls thoroughly tied together. In this method of roofing school buildings the architects have followed the development of business houses. In several cities, these flat roofs have been turned to a novel but very worthy use, aside from protection from the elements. Roof playgrounds have become an important factor in the educational life in large cities.

Practically 90% of all roofing troubles occur in the valleys or flashings, and unless these points of your roof give satisfactory service, roofing troubles and expense are bound to result. Generally speaking the flat roof which slopes from the side walls to a central point of the building where the rain water outlet is located has proven a success. Special rain water outlets provided with screens, flashings and expansion joints are now to be had and are giving excellent results. Where the rain water is carried off in the center of the building, the rain water leader never freezes, the heat from the interior of the building being sufficient to keep it always open.

TEACHERS' PRIVATE ROOMS

 

54. There should be a room for the private use of the teachers of the staff, of suitable size and comfortably furnished. At least in schools with more than one teacher, to be erected hereafter, private rooms shall always be provided.

The Department Regulations do not prescribe a private room for a one-teacher school. It is, however, very desirable that one should be provided. Most of our teachers are women, and it is only reasonable that they should have some place where they can make necessary changes or adjustments to their clothing, especially in stormy weather. Such a room is also available in case of the illness of any of the pupils. The slight additional expense of a private room should not deter the trustees from providing one.

LIBRARY

 

55. Library.—No school building is complete without a library. It is not necessary in a small school to have a large room for the library. The library room will afford the teacher opportunity to confer privately with parents and school trustees. Teachers will soon learn that when parents call to discuss or present a grievance, it will appreciably lessen any possible friction to send them to this room where an atmosphere of quiet and dignity prevails, and to allow a few minutes to elapse before conferring with them. For various reasons, in many of the floor plans presented for one-teacher buildings, one room is planned to serve as a library and teacher's room. If some such plan for a library room could be worked out, and the books be selected and used with reference to the special needs of the community, the people would soon be willing to increase the expenditure for books and would develop a commendable pride in their Public School library. The library room is one of the most useful parts of the country school. Book shelves should be built into the walls. There should be a table and a few chairs. Occasionally a class of older children may be allowed to use the room when they have work to prepare that can be done best with the freedom to converse.

COAT ROOMS

 

56. Coat rooms for elementary schools are easily arranged, and have become almost standardized as to location and size. In schoolhouses of not more than four rooms it is quite possible to arrange to give separate coat rooms for the sexes without undue expense or inconvenience, and where this can be done it is most desirable. In large Public Schools it is not necessary to have separate coat rooms for the sexes. Each class room should have a common coat room; this will avoid confusion. At least one entrance to the coat room should be through the class room, at the teacher's end of the room. Coat rooms should be at least five feet (5') wide. They should have at least one window with a net area of glass one square foot to every ten feet of floor space.

Wardrobes may be permitted in class rooms if they are equipped with heat and vent ducts in the same manner and according to the same rules as class rooms, or ventilated by means of an exhaust system, on a basis of a complete change of air not less than once every fifteen minutes.

 

57. Locker Rooms.—Locker accommodation for High Schools is recognized as an absolute necessity. Students in High School are moving from one class room to another during the day, and rarely ever finish with a recitation in the same class room in which they began the day. They have no permanent class room where they may leave their books and materials. Separate coat rooms should be provided for the sexes, and in large schools there should be two coat rooms on the second floor and two on the first floor.

 

58. Basement Locker Rooms.—There is no objection to the basement being used for this purpose, provided the basement floor is not more than three feet below the outside grade level, and is well heated, lighted and ventilated. The locker rooms should be near the entrances and so located as to avoid crowding.

 

59. Individual Lockers.—Where individual lockers are provided, they should be well ventilated, strongly made, provided with shelf and coat hooks and have individual locks with master-key left in the principal's possession. Handles should be flush and the tops slanting and built on the unit-principle. This will allow flexibility of installation and change of arrangement at any time. Make these rooms neat and attractive. Then it is the duty of those in authority to see that they are carefully kept. Provision should be made for drying damp clothing, umbrellas and overshoes. The lockers should be raised a few inches off the floor to allow for washing and flushing the floors.

 

60. Lockers in Corridors.—It is a mistake to place lockers in the corridor; they invite congestion, are hard to keep clean and difficult to ventilate. There is also the objection of the smell of damp clothing, the tracking in of snow or mud and dripping umbrellas. By far the most satisfactory arrangement, but not the cheapest, is to have well-lighted locker rooms for both sexes off the corridors, with toilet rooms adjoining.

 

61. Drying Clothing.—A very good arrangement for drying and ventilating the clothing is shown in Fig. No. 5. This arrangement consists of cast iron brackets supporting two iron bars, upon which are bolted at nine inch centres, cast iron hat and coat hooks with number plates. The iron bars project and hold the clothing free from the wall, allowing the heat to circulate around same. The iron bars are set at different heights to accommodate the pupil's height. A floor drain carries off the drippings from the umbrellas, and the steam heated coils used for heating the room dry the clothing and umbrellas.

 

62. Corridors.—It is a matter of great importance that a corridor should be well lighted in every part, since it serves for a number of purposes besides merely affording access to the class rooms. The corridor should be not less than ten feet wide, in the clear, for buildings with eight class rooms, and should increase one foot in width for every two additional class rooms, and may decrease one foot in width for every two class rooms less than that number. It shall be free from sharp turns. In buildings where the corridors are of fair size, well lighted and heated, there is great opportunity to secure an attractive appearance. It can be used as a picture gallery, for notice boards, etc. Spacious corridors offer perhaps the best opportunity for the location of pictures, for mural paintings and those touches of art which exert such a powerful though silent and unconscious influence upon the lives of young people.

In schools where drawing and painting is done the best work executed during the week may be pinned upon large boards hung in the corridors, providing not only an incentive to work, but also a pleasant change of decoration. In High Schools the rule is for a complete change of class rooms for all students at the close of each recitation period. This at once makes it clear that the corridors of High School buildings are used much more than those in buildings designed for the elementary schools. Aside from these reasonable and just claims for wide corridors it is always expedient to keep in mind dangers from a blockade in case of fire or panic.

FLOORS

 

63. Floors.—There should be double floors in all buildings not of fireproof construction, especially in those situated in the first story. This is important for several reasons, but chiefly to prevent the inflow of ground air and bad odors from basement. The first or rough floor should be carefully fitted with well-seasoned material.

 

64. Floor Deadening.—Over this should be laid and turned up all around walls, at least four inches (4") in height, some approved sound-deadening quilt. There are many kinds on the market, some composed of sea-grass, others of fibre and cattle hair, all designed for this purpose. For small buildings for village or country schools it is far better to use heavy building paper than none at all. Double floors soon save their cost, especially where fuel is high.

 

65. Double Floors.—From the hygienic point of view single floors on the first story of a school building should not be tolerated, for during the winter months the children will suffer constantly with cold feet. In the upper story the matter of noise is especially troublesome unless the floors are thoroughly deadened and ensured against jarring noises. The problem of the upper floor is therefore a more insistent one than it is for the lower rooms. In buildings thoroughly fireproofed the problem is easily solved.

To some who are accustomed to conditions as they exist in our cities this discussion of the need of double floors may seem out of place or at least superfluous but to all such who read these lines let it be known that there are hundreds of schools built throughout the country with single floors. It is to help prevent a continuance of these errors that the above is written.

 

66. Hardwood Floors.—For the finished floors, carefully selected hardwood should be well laid with tight joints, the best material being either maple or birch in narrow widths not over two and one-quarter inches wide, tongued and grooved, kiln-dried, and not less than three-quarters of an inch thick. Such floors wear evenly, do not splinter, and are easily kept clean on account of the close grain of the wood.

 

67. Laying of Floors.—Floors, however, are often damaged by careless workmen in their efforts to draw the flooring close together. Instead of using a nail-set or carefully fitting the boards so that they will work together easily, they drive the nails in with a hatchet or hammer and frequently batter the edge of the boards so that when the floor is completed it will show these marks and leave openings for the entrance of dirt.

 

68. Finishing the Floor.—After the floor is laid it should be planed or sandpapered before it is used. It should be treated with two coats of hot linseed oil, then, after it is thoroughly dried, should be waxed. The oil will fill the pores of the flooring and prevent it from shrinking and the wax will give it a finish so that it will not mar and hold dust.

 

69. Corridor Floors.—The floors of corridors in High School buildings are subjected to more wear than those of the class rooms. The materials used for these floors is of considerable importance. Where finances will permit, tile, terazzo or composition floors with integral coved bases are clean, durable and non-absorbent and render the corridor lighter and more cheerful than wood.

 

70. Composition Floors.—There are many composition floorings on the market, many of which have no prescribed standard, each manufacturer making and maintaining his own. The term "Composition Flooring" is a very broad one and great latitude is allowed any manufacturer of this product in making up his formula. The tendency is naturally to produce the cheapest flooring possible. In this way consideration is usually brought to the cheapest flooring when considered from a viewpoint of price only. Certain adulterations such as sand, infusorial earth, marble dust, ordinary sawdust, etc., are ingredients sometimes offered. A good monolithic flooring is sanitary, is resilient, quiet and not tiring to the feet. It is warm, being a poor conductor of heat, and is fireproof. There is economy in its use. It costs less than tile and is specially valuable in laboratories and toilet rooms. Being laid in a plastic form it is easily made an integral part of the base and wainscoting, forming a continuous sheet. Many colored combinations are possible to obtain.

 

71. Asphalt Mastic Flooring.—Asphalt mastic floors are recommended for play rooms, stair treads, corridors and toilet rooms. They are silent, dustless and sanitary.

DOORS

 

72. Doors.—The most serviceable door for school purposes is that of the "slab" pattern, i.e., smooth on both sides, free from mouldings and panels. The center or core is built up of light, well-seasoned pine or poplar sections glued together and dried under heavy pressure, then veneered with wood to match finish of the rooms. This makes a comparatively light door, which will not easily split or warp. Such a door is readily kept clean and when properly finished is more attractive than the regular panel door. In class room doors it is sometimes desirable to have a glazed panel inserted in the upper part of the door to allow the principal to inspect the class without disturbing the teacher. This is not always approved of, and it is well that the question should be settled when building.

 

73. Size of Doors.—All doors should swing outward from the class room and in the direction of the exits. Modern practice calls for wider openings to school rooms and from three feet six inches to three feet eight inches are commonly called for.

 

74. Transoms Over Doors.—Transoms over doors are a nuisance, they collect dust, they do not add to the efficiency of ventilation, and should never be used unless for lighting the corridors.

HARDWARE

 

75. Hardware.—Double acting spring hinges should not be used, but all outside entrance and exit doors should open outwards, and all inside doors should swing outward toward the natural way of egress. All doors from halls to coat rooms should swing into halls. Single outside entrance doors should have locks so that they may be locked on the outside but which can always be opened on the inside by simply turning the knob, whether they are located on the outside or not, the locks being operated by key from the outside only. No night-latch attachment should be placed on the face of lock, or other bolts, hooks, thumb knobs or other locking device used on these doors. Doors from halls and coat rooms should have no locks upon them but they should be equipped with knob latches only. However, if locks are desired the same style as above specified for entrance doors should be used since they can be locked on the hall side, but will always open from coat room side, whether locked on hall side or not. Locks of this kind are recommended to prevent access from outside, but under no conditions can a person be locked in the building.

 

76. Outside Doors.—Outside doors used exclusively for exit purposes should have one knob latch only, no bolts or hooks, or other locking device being used. One of each pair of outside or inside double doors should have a double expansion panic bolt, and both should have push bar, push plate, push handle or some other device whereby the simple act of pushing against the same will release the top and bottom bolts and at the same time allow doors to swing open.

Independent top and bottom bolts should not be permitted. The outer door of each pair of outside and inside double doors should have lock or latch as above specified. All bolts latches, face locks, working parts of extension bolts and other exposed working parts about this hardware should be cast bronze metal to prevent rusting, which would interfere with the operation. Class room doors should have knob latches (without key) or equivalent. The only doors in the building that may have locks will be the main entrance door, toilet rooms and boiler room.

STAIRWAYS

 

77. Stairways.—Within the past decade architects have learned the necessity of building stairways which will be fire-proof and panic-proof. The stairs in many of the older buildings would not be tolerated in modern construction. Some are very dark. Many discharge into the center of the building instead of to the exits. There should be two stairways in a building having more than two class rooms and less than nine class rooms on the second floor. Every school building having nine or more class rooms on the second floor should have at least three stairways, each leading to an exit from the first floor to the ground. Stairways are best situated near the outer walls of the building, thereby giving the natural division of the pupils into groups which in case of panic will prevent congestion on the stairs and landings. This location supplies a separate staircase for each sex, and facilitates passing up and down between recitations.

Too great care cannot be exercised in the position and arrangements of stairways; they should not be located in the middle of the building, as the danger in case of fire is much increased.

Stairways should be encased with fireproof walls or with fireproof self-closing doors. No winding steps should be used. No closets should be placed under stairs. When the Assembly Hall is above the second story there should be one more stairway from the Assembly Hall equal to one foot in width for every hundred persons which the Assembly Hall is capable of seating. No such stairway should be less than four feet (4') in width. The stairways should be enclosed in fireproof or fire-resisting walls, should have no connection with any other part of the building and should run directly to the ground. Measurements for all stairways should be taken between hand rails.

 

77½. Box Stairs.—Strong objections are made to box stairways on the ground that they are unsightly in appearance, that effective supervision is impossible, and also to their being dark. On the other hand the open stairway does not sufficiently shield the girls as they ascend from exposed positions to the view of those on the lower portions of the stairs and landings. At High School age girls still wear short skirts. Again, dirt caught in the rectangular corners of the open balustrade is hard to remove, whereas the box stairway, i.e., one with walls carried up each side, has an advantage over the open stairway. There is less waste of heat in the lower corridor, better control of the ventilation and the construction lends itself more readily to fireproofing and does away with the objectionable well-hole. The lighting can easily be obtained when stairways are properly located adjacent to outside wall. As a rule fire originates in the center of the building. If it does not originate there the smoke is likely to gather there and render a central stairway dark and forbidding.

 

78. Landings.—There should not be more than fifteen, nor less than three risers between landings. The landings should be the full width of stairway and no winding steps should be used.

 

79. Width of Stairs.—One hundred students in double file can easily descend a broad, well-lighted stairway in thirty-five seconds, and with proper fire drill can emerge from the building in one minute and a half. In all cases the stairways should be wide enough for two adults to ascend or descend abreast without crowding. In large schools there should be room for three adults on the same tread at once. In general from five feet six inches to six feet between rails will give plenty of room, save in very large schools.

 

80. Handrails.—Handrails should be properly placed on both sides of all stairways used by pupils. The inside rail should be continuous. The wall rail shall have an approved number of cast brackets; the upper end should have circular returns secured with rail bolts or wall plates and they should not extend more than three inches from the wall.

 

81. Height of Handrails.—The height of handrails above nosing of risers should be two feet six inches and on landings two feet ten inches.

PROPORTION OF TREADS AND RISERS

 

82. Treads and Risers.

Width.Height.Width.Height.
8"7½"12"5½"to 6"
9"6¾"13"5"to 5½"
10"6¼"14"4½"to 5"
11"6"15"4"to 5½"

 

83. Headway Required.—A headway is required of at least seven feet to seven feet six inches between levels of treads, or six feet three inches to six feet nine inches between raking lines of stair and soffit of landing.

 

84. Gradients.—Gradients shall be used instead of steps to overcome differences in levels not more than one foot six inches and no such gradient should exceed one inch in ten feet. Sills of adjacent doors shall be so designed as to be level and flush with adjoining floors.

ASSEMBLY HALL

 

85. Assembly Hall.—Every High School building should have an assembly hall. In village and country schools there is as much or more need for an assembly hall as in cities with more pretentious buildings, and yet, under the stress of financial conditions they are very frequently eliminated from the plans for the smaller schools. When we consider the needs of social influences, artistic refinements and neighborhood co-operation movements we must appreciate that an artistic assembly hall will greatly contribute to these ends.

 

86. Advantages of an Assembly Hall.—In the first place, an assembly hall is of special importance in the school itself. The country children will find in an assembly hall the satisfaction of their desire for a wider social contact and companionship. Such a room will also furnish an opportunity for bringing parents together for entertainments, lectures, and community gatherings.

An assembly hall is necessary for the morning exercises, and especially for chorus work. Music is much needed in such schools, and, as has been already pointed out, will appeal strongly to young people who have had to leave school. The difficulty of creating a school spirit and a neighborhood enthusiasm for general progress is greatly relieved by an assembly hall. Lecture courses have been introduced by the Department of Education, not primarily for school children, but rather for those who have left school and gone to work. For such adults as desire to keep up their intellectual interests, manual and technical training, household science and agriculture classes have been formed in support of these branches of education. The Department of Education has set aside generous grants for those communities who are responsible for schools that will meet with the requirements set forth by the Department of Education. In addition to the above uses, it will be a great stimulus to boys and girls if they can occasionally share in the use of these rooms.

An assembly hall, properly and tenaciously guarded against those who have selfish ends to serve, can become the rallying point for the general educational movements of the community. Having said so much in general, these arguments are often needed to convince those in authority of the importance of supplying assembly halls.

 

87. Location of Assembly Room.—The main use of the room being to rapidly gather together the whole school and then dismissing the pupils to their respective classes, it is essential that it should be easy of access. The first floor is the logical location. It should be in the center portion of the building rather than at one end of the extremities. In size it should accommodate the entire student capacity of the building.

 

88. Seating Capacity.—It is important that the seating be arranged so that every seat has an unobstructed view of the stage. The seating capacity may be very closely figured by taking the area of the room (excluding the stage) in square feet, and dividing by six and one half, the number of square feet allowed each person. The result will be very nearly the exact seating capacity of the room including the space for aisles. The seats should be spaced at least thirty inches back to back. Thirty-two inches is more comfortable. The width of the seats from arm to arm should be not less than nineteen inches, and twenty inches is more desirable if space affords.

The width and spacing of the aisles are governed in some cities by ordinances, the same applying to theatres. The best practice seems to require that the aisles with seats on both ends must be at least thirty-six inches wide at the narrowest part, and that this increases in width towards the exit at the rate of one and one-half inches for every five feet in length. No seat should have more than seven intervening seats between it and the nearest aisle. Obviously, this practice does not permit of more than fifteen continuous seats in a row where there is an aisle on both sides or more than eight seats in a row in an aisle on one side only.

 

89. Height of Platform.—When the seat aisles have been well arranged it is not necessary to raise the stage high above the audience floor to place the entire stage in view. A comparatively low stage overcomes the awkwardness of making the people in the front rows look directly at the feet of the speaker or holding their heads at an unpleasant angle to see his face. This defect is conspicuously apparent in platforms of many old schools, the stages of which are often four feet high. A height of two feet six inches is quite sufficient. An anteroom on either side should connect with both the stage and corridor.

 

90. Stage Furniture.—Furniture used on the stage is another item not always given the consideration it deserves. The ordinary school furniture which one usually sees on an auditorium stage is entirely out of keeping with the formal character of a platform, and heavier and larger furniture with a finish in harmony with the color scheme of the room should be selected. Ordinarily a settee, two arm chairs and two side chairs are all that are necessary. It is also desirable to have at least two taborettes, or small tables, for flowers, books or other miscellaneous purposes. The reading desk should be of a good design and not of the usual "church" character so often seen. The accompanying illustrations show how good furniture is used.

In front of the curtain to the edge of the stage at least six or eight feet should be available so that when the curtain is closed there will still be sufficient space for the reading table, chairs, etc. Footlights are usually installed in the gutter across the stage front, and when not in use are covered with movable board covers. In small buildings built-in footlights are often omitted and an electric outlet is set in the floor attached to which is a portable footlight.

 

91. Acoustics.—Acoustics are sometimes a troublesome problem. While it is acknowledged that no positive or absolutely perfect results can be guaranteed, there are, nevertheless, certain general principles which should be kept in mind and followed as closely as possible. In the first place, the room should not be excessively high. In a high room an appreciable length of time elapses between the instant the sound is made and the instant when its reflection from the high ceiling reaches the ear. This produces an echo. The walls and ceilings are better if broken up by ornamentation and projections rather than when they are smooth and plain. A plain, smooth wall, of course, reflects the sound and tends to produce an echo, while one with projections tends to break up the sound waves and overcomes the fault. Comparatively soft plaster, made of the old-fashioned lime mortar is better than a hard, patent adamant plaster, since it has a tendency to absorb the sound waves, while an adamant plaster tends to reflect them.

HIGH SCHOOL ROOMS

 

92. High School Rooms.—In planning High School buildings the size of class rooms may vary a great deal to meet the requirements of different-size classes. Some subjects attract relatively small classes, and it would be useless and expensive to provide rooms larger than required. The class rooms of a High School cannot be standardized in regard to the amount of floor space as can those for elementary purposes. The classes in High Schools should not be large, especially in languages and mathematics. In literature and history more can be accommodated than in other subjects; but even these subjects cannot be successfully taught when the number of students exceeds thirty. A building committee is apt to consider the question well disposed of when sufficient class rooms have been provided to allow a seat for every student. This is based on the calculation and the assumption that each class room is filled, instead of upon the number of classes it is intended to have.

It is hardly possible to overrate the advantage to the architect of having the principal give his advice as to what will be required while the plan of the building is under consideration for as soon as one begins to make preliminary studies for High School purposes, certain definite and peculiar demands arise. Every High School, in addition to the ordinary class rooms contains laboratories for the sciences, rooms for manual training, agriculture, and household science classes, besides gymnasium, assembly room and locker rooms. It will be in order then to set forth the requirements of a High School building with reference to special rooms.

The time has passed, in the history of education, when it was thought sufficient in a course in physics for the teacher to set text-book lessons and to do the experimenting himself in the presence of the class. We can have no hope for any lasting interest or thorough understanding of these subjects unless the students take hold of the apparatus and under specific direction and wise guidance perform the experiments themselves. Elsewhere a list is given of the accommodation usually provided in High Schools.

 

93. Assembly Room.—The general rules applying to elementary school rooms should apply to High School study rooms and assembly rooms wherever the floor area of such rooms does not exceed 1,500 square feet. High School study rooms having a greater floor area than 1,500 square feet and not less than fifteen feet in height, should be computed as having a seating capacity equal to one pupil for every fifteen square feet of floor space. Such rooms should be provided with a sufficient number of doors leading directly to the main corridor in a ratio of one door, not less than three feet wide, to each fifty students or major fraction thereof. Assembly rooms seating five hundred persons or more should be provided with exits conveniently located and so computed that there should not be less than thirty lineal inches width of exit for each one hundred persons, or major fraction thereof.

 

94. Recitation Rooms.—Recitation rooms should be oblong and of standard size in regard to floor area and should approximate three hundred and sixty square feet; four hundred and twenty square feet; seven hundred and twenty square feet.

 

95. Industrial Departments.—High Schools and graded schools receiving aid from the Ontario Department of Education shall provide suitable rooms for each industrial subject, and the minimum requirements of such schools should be:—

 

96. Agricultural Room.—A recitation room, a laboratory and storage room.

 

97. Manual Training Room.—For manual training, one workroom, one room for mechanical drawing, one for iron work, and teachers' room. For further details see regulations published by the Department of Education.

 

98. Household Science Room.—For household science, a kitchen, dining room, sewing room, laundry, and bed room. For further details see regulations published by the Department of Education.

 

99. The Laboratory.—Whether the laboratory in a two-story building should be placed on the first or second floor is an interesting question. There are advantages and disadvantages with either location. The laboratory is a somewhat noisy place, therefore it should never be located between class rooms. It should be as far as possible away from the boilers to be free from disturbing influences on magnetic and electrical experiments. If placed on the first floor there is danger that the fumes and odors from chemicals used in experiments may escape into the corridors and adjoining class rooms, making it difficult to keep the air fresh and pure. Then, too, it is better, as far as possible, to use the space on the first floor for recitation rooms, and in this way obviate stair-climbing so far as possible. It must be remembered that at least three-fourths of the recitations of a High School course are held in ordinary class rooms. It is far more difficult to properly ventilate a chemical laboratory on the ground floor, than it is on the second floor, since, taking it for granted that in the latter location it is next to the roof, all fumes and gases can be more easily carried off. When the laboratory is on the ground floor, ventilation ducts must be placed in the walls and this makes it necessary either to do the experimenting work close to the walls or to make overhead or under-floor ducts for experimental tables in the center of the room.

On the other hand, it is much easier and less expensive to supply proper and safe plumbing for a chemical laboratory on the ground floor. Aside from the difficulties of plumbing there is no reason why the second floor should not be preferred for the laboratories. The light is better, the probabilities for disturbance are reduced and it permits of a sky-light being used, thus giving more light and ventilation. Laboratories will stand more light than class rooms. A class of twenty-four pupils is the maximum number to be provided for. Assuming that it is best to have the physical and chemical laboratories on the first floor, and if possible in the same part of the building in order to make the lecture room serve both, and not to be removed from the apparatus or supply rooms, the following engraving (Fig. No. 12) will illustrate what seems to be one of the best arrangements thus far worked out.

This engraving shows the laboratories occupying the same wing of a building with windows looking towards the East. They are supposed to be on the top floor, and are adjusted with reference to the apparatus rooms and a common lecture room, lighted with sky-light. The balance room is well lighted and is adjacent to both laboratories. These are compactly placed and do not occupy an excessive amount of space. The lecture room is placed between the two laboratories so it may be easily reached by doors from either. After students have finished their experiments in the laboratory they may pass into the lecture room for explanations. The lecture room also has a door into the corridor so that it is accessible from the corridor without interruption from the laboratory classes. There are two store rooms—one for chemistry, the other for physics—with doors leading into respective laboratories. As the apparatus for each laboratory will be continually used for demonstration work in the lecture room, both store rooms have doors into the lecture room as well, so that their apparatus is just as convenient to the lecture room as it is to the laboratory.

The sides of the store rooms adjacent to the lecture room should be made of glass partitions extending to the ceiling, so that the rooms may have good light. The partition between the balance room and lecture room should be of prismatic glass extended to the ceiling so that the latter will be excellently lighted from lateral windows as well as from the sky-light.

 

100. Equipment.—It is not the purpose here to enter into detail regarding general arrangement and equipment of the science rooms. This subject is well cared for in another bulletin, "Laboratory Accommodation," pamphlet No. 9, Ontario Department of Education.

 

101. Combination Chemistry and Physical Laboratory.—In a High School where one teacher is expected to teach both these sciences where the matter of expense is serious and the attendance is small, a combination chemistry and physical laboratory may be used, although the combined laboratory is not to be recommended, for the following reasons: The students' benches suitable for physical experiments are not convenient for the chemistry work. In chemistry every student should have ready access to a sink while in the physics bench the sink is inconvenient, a plain, level surface of large area being required. This suggested cutting down is a somewhat distressing subject, but one, which from financial reasons plays usually so large a part in the preliminaries of a building scheme, it may perhaps be permissible to lay stress on the fact that cheapness and economy are by no means synonymous terms, a truism obviously, but a factor very likely to be ignored in the effort to bring the cost of the scheme down to some set figure.

HOUSEHOLD SCIENCE AND DOMESTIC ART

 

102. Household Science and Domestic Art.—Household science and domestic art are responsible, in a large measure, for shaping the lives and character of the future wives and mothers, the home-makers of the nation. It is, therefore, of the utmost importance that the furnishings in these departments be selected with due regard for the influences they will have upon the character of the pupils. Because of the fact that the ideas of the people have in recent years grown more refined they have come to the realization that school rooms should be equipped with a view to developing in the minds of the pupils that intangible quality of the imagination which prompts the choosing of suitable and harmonious surroundings in their homes and places of business in after life.

"Character is heredity and environment in combination," heredity being only stored environment. It is therefore our duty and privilege to make these stored environments, in the minds of coming generations, of the best quality, for every single item that serves to make environment surely adds its influence to the building of character—good or bad in proportion to the quality and efficiency of the training offered.

We learn that child life is far more sensitive to impressions of any kind than we have before realized and it is certain that this wonderful sensitiveness and ready adaptability have not by any means been put to its best possible use in child culture, either in the home or in the school.

In the planning of a modern school there are endless combinations to be worked out in which household science and domestic art may be included. Fig. No. 18 is offered as a suggestion of how a wing in a well-lighted and heated room on the upper floor of a school may be arranged.

 

103. Cooking Laboratory.—The cooking laboratory is furnished with not more than twenty-four tables arranged around a hollow square, each having two gas-stoves on top and accommodating two pupils. In the center of the hollow square is the supply table, and near by is a large size coal or gas range, slop sinks and dish-washing sinks with hot and cold water.

Adjoining the cooking laboratory is a storage pantry, and possibly a model dining room, where the pupils are taught to set the dining table properly and to serve a meal. In the larger schools a laundry is installed, but where space is not available, two or three laundry tubs and an ironing board installed at a corner of the hollow square formed by the cooking tables or against the walls may be used.

Dressers are provided for the storage of cooking utensils, also a case for pupils' white aprons and caps.

 

104. Model Apartments.—Model Apartments consisting of a living room, dining room, kitchen, bed-room and bath-room, are now being installed in many High Schools in connection with Household Science Departments. In these rooms, which are made to resemble actual conditions, the pupils take turns in managing affairs and learning the details of good housekeeping.

 

105. Sewing Room.—The sewing room should be furnished with large work tables, sewing machines and cabinets for storing incomplete work. A fitting room is required, which can either be a separate room or can be one corner of the large room curtained off or screened. Running water should be provided in the dressmaking room, and also ironing boards and outlets for electric irons, in order that the necessary pressing may be done.

 

106. Lunch Rooms.—The lunch room may be located adjoining the domestic science room but since this is a very valuable part of the building for class-room use it is not usually found advisable to locate the lunch room, which is only used an hour or two a day, in so important a position. Consequently, some available space in the basement is used for this purpose and a separate kitchen installed. On account of the number of pupils who have to be served quickly the room can scarcely be too large.

 

107. Gymnasium.—A gymnasium of the minimum value (for equipment) of $1,600 is obligatory in the case of Collegiate Institutes, and a gymnasium is optional in the case of High Schools. The gymnasium is usually located in the basement and if well lighted and ventilated there can be no objection to this location.

Shape of Room.—The proportion of length to width should approximate three to two. For convenience of arrangement of apparatus, formation of classes and design of running track this shape serves best. There should be plenty of room provided to allow for a considerable amount of movement. An allowance of from twenty to twenty-five feet (20 to 25 sq. ft.) per head of the largest number that are likely to be using it at once, is not too large an allowance. The height is of much importance—not less than eighteen feet nor more than twenty feet (this refers to the actual ceiling height for overhead apparatus). Where the gymnasium forms only one room in a small school, it becomes impossible to retain the eighteen feet ceiling minimum. In such cases hold as closely as conditions will permit. Good work is done in many gymnasiums where the ceiling is of less height, but as a rule it will pay to remodel plans in order to produce the desired height, besides adding many good and needed cubic feet of oxygen. The placing of the windows must of necessity depend upon general lighting conditions. It may be pointed out, however, that the majority of wall apparatus is attached at points from five feet to eight feet from the floor, chest weights at five feet and bar stalls at eight feet. These two types of wall apparatus are used in quantities for class work and allowance should be made for their proper installation. It is desirable to have one good wall, free from windows, or windows placed above the height required for apparatus. The various games of ball played in modern gymnasiums make it necessary to protect the windows.

Heating pipes require the same thought as the windows. Keep the room as free from projecting material as possible.

 

108. Wall Boards.—It will greatly facilitate erection of the apparatus, save expense, and produce better results if wall boards are fitted in walls when construction is going on. They should be set four feet eleven inches high on the center for chest weights, and seven feet nine inches high on the center for bar stalls. Boards should be one and one-eighth inches by eight inches and stained to match wood work.

 

109. Flooring.—Maple is preferable for the finished floor. All gymnasiums should have sub-floor. It must be borne in mind that more or less apparatus is guyed to the floor which must therefore be made to withstand this upward strain and pull. Many kinds of apparatus are attached to iron plates which are set in flush. Cut away one inch of dressed floor to insert a three-eighth inch plate and little is left for screw-hold. A rough floor of one and one-half inches thickness is therefore recommended. The correctly-laid floor follows the lines of the walls. Much of the class drill in a gymnasium calls for marching around the room, and frequently gymnasiums are used for social events, dancing, etc., in which cases the wearing is more evenly distributed over such a floor, as it follows the grain of the wood.

 

110. Storage.—Where provision can be made for a small storage room just off the gymnasium, with good wide doors, it is a great advantage. Apparatus that may be considered undesirable at times during class drill may be stored there.

TOILET ACCOMMODATION AND SANITARIES

 

111. Toilet Accommodation.—The most economical and convenient place for sanitaries is in the basement. Plumbing is less expensive, better floor construction can be made and privacy is guaranteed. The sanitaries are easily reached at recess time by the pupils, without tracking in dirt to the upper floors. A study of the toilet arrangements in elementary schools leads to the following suggestions:—Wherever possible, seats should be placed around the walls of the room and urinals down the center, because this arrangement avoids cutting off light from the windows. The sanitaries should be placed so that they may receive as much direct sunlight as possible, with south exposure. Urinals should be placed as near the entrance as possible and the water closets farthest from the entrance. In order to make the room as light as possible and at same time preserve privacy, the windows may be glazed with prismatic sheet glass and protected on the outside with coarse-meshed wire screens.

 

112. Sanitary Floors.—A few of the newer schools have asphalt floors in the toilet rooms. This is wise because uric acid sets up a chemical action in cement which cannot be corrected, and for this reason cement floors should not be used near water closets and urinals. There are sanitary floors that may be used to advantage. These are described under the title "floors." If cement floors are used they should be waterproofed. This will render them less porous and prevent the rise of ground air into the room.

 

113. Walls of Toilet Rooms.—Facing of walls should be, where possible, of glazed tile, in order to prevent the absorption of light and make it easy to scrub and disinfect the walls. Where walls are so constructed there is much less liability for defilement in way of indecent drawings or indelicate scribblings. If cost will not permit of tile or glazed brick being used, the composition flooring or waterproofed cement may be used, running it up to form a wainscoting. If this is done at the same time the floor is laid so as to get a cove between the floor and wainscoting as an integral part it will be found advantageous. The floors should be drained to an outlet to allow flushing with water. The boys' floor might drain into the urinals.

 

114. Water Closets.—Water closets should be of porcelain with open front seats of sanitary material, made self-operating by means of a self-acting valve to flush the bowl. Some architects recommend integral seat and bowl, claiming that they are easily kept clean; these have no wooden seats. On the other hand it has been found that the integral bowl is cold and uncomfortable, and on this account tends to retard the movement of the bowel.

 

115. Number of W. C.'s Required.—In elementary schools the number of seats that will suffice for the girls' sanitaries can be determined by dividing one-half the total number of pupils the building is designed to accommodate by fifteen. For boys the number of seats can be approximated by dividing by twenty-five. Urinals should be supplied at the rate of one for every twenty-five boys.

 

116. Drinking Founts.—Drinking fountains should not be located in the toilet rooms. They should be outside in the corridor. This will separate the children into groups, and lessen the tendency towards loitering and confusion.

 

117. Sand Strainers.—For the protection of plumbing fixtures, meters, etc., from scale, cuttings, sand, shells and other foreign matter, sand strainers are recommended. They also prevent cutting matter reaching the working parts of the water pressure regulator and should be used wherever a regulator is installed. They are not expensive.

 

118. Urinals.—Individual urinal stalls are very unsatisfactory in elementary schools. It is almost impossible to flush them thoroughly, to keep clean, and to properly ventilate.

 

119. High School Toilets.—Toilet rooms in a High School should be distributed throughout the building, with boys' and girls' toilets on each floor. This is because the toilets are used particularly during the change in classes, and should be easily accessible. This is a somewhat different arrangement from elementary schools, where the toilets are most used during recess time.

 

120. Toilet Partitions.—With the advent of steel toilet-partitions, doors, back and utility corridor enclosures a highly satisfactory solution of the question of suitable partitions for this purpose has been solved. This product, built of sheet steel metal throughout, fulfills every requirement of the modern toilet room, being fireproof, sanitary and inexpensive when compared with marble or slate, and being of metal construction throughout there are no unsightly joints, and nothing to crack, warp or swell. This product adapts itself in every way to meet all ordinary as well as unusual conditions in connection with toilet, shower and dressing room enclosures.

FIREPROOFING THE SCHOOLHOUSE

 

121. Fireproofing.—Four thousand two hundred men are employed by Canadian municipalities waiting for fires to occur, and then attempting to extinguish them. The cost of their service exceeds $4,000,000 a year. This energy would be better employed if devoted to the removal of fire-breeding conditions and to the enforcement of proper regulations to prevent the occurrence of fires. Improvements in schoolhouse construction have been very marked during the last few years. The public health and welfare, so largely dependent upon good ventilation and sanitation, have been, in the main, fairly well provided for by the installation of modern plumbing and heating systems. There remains yet another necessity to be provided for, which should be uppermost in the minds of those in authority, that is the fireproofing or fire-retardant construction of our schools. The conscientious architect can be of great and lasting service to rural school districts by including in his plans proper and adequate protection for the children by demanding that the corridors and stairways at least be constructed of fireproof material. It is not simply a professional duty on the part of architects to do what they can to safeguard the lives of school children; it is a moral obligation of citizenship, and one which by reason of his training and education an architect should more readily realize and more effectually discharge than can any layman. How many laymen have realized or would believe that the school is really the most important of our civic buildings? Yet the lives this building shelters are by far the most valuable in any community.

 

121½. Hollow Tile.—When properly handled hollow tile will give almost ideal results and may be used with perfect safety for exterior and interior bearing walls which receive directly the loads from the floors or roof, in addition to their acting as partition walls. Where the cost of brick is excessive or where bricks are not of a good quality, the tile will often be found to fill the requirements and save the school district money.

 

122. Stand Pipes.—School buildings should be provided with stand pipes connected with the town system of water pressure, or with tanks in attics. Outlets should be provided on each floor, supplied with sufficient quantity of good cotton hose, one and one-half inches in diameter, and equipped with nozzles, quick-opening valves and hose-rack.

 

123. Automatic Sprinklers.—Automatic sprinklers are a good fire protection when properly installed and will reduce the insurance premiums considerably.

 

124. Waste Paper Baskets.—Waste paper baskets should be of metal with opening at top only.

 

125. All two-story buildings should be provided with a gong or other efficient fire-alarm system. On each floor, there should be a chemical fire-extinguisher at a readily accessible point. Doors to boiler rooms should be self-closing. Basement should be kept scrupulously clean, with no old furniture, waste paper, or kindling remaining even in remote corners. If there is an attic it should be kept locked.

 

126. Sanitary Water Supply.—Springs and wells are the usual sources of water supply. The springs are usually at some distance from the schoolhouse, generally on lower ground. They are often exposed to contamination and receive drainage from swampy ground, much-used pasture lands, or defiled areas. In fact, they furnish merely slightly purified surface water, and in some cases they issue in open pools. These pools are depositories for leaves, dust, and dirt. Insects find lodgment therein; various animals share in their use. Despite all these sources of pollution most people are brought up to believe that no water is as pure as "spring water." There are many springs that furnish fairly pure water, and many others which if properly cared for would be safe.

Possibly of all springs the small intermittent, dribbling ones are the most dangerous. Getting their supplies from the immediate surroundings, they discharge surface drainage which has had small opportunity for purification, either by filtration or by other means. Springs in limestone regions are often subject to contamination by reason of the fact that the underground channels through which the water flows are often connected with sinkholes partly filled with water and used as a water supply for cattle and other domestic animals. Water from such a source may carry long distances with limited opportunity for areation, filtration or purification of any kind. All these facts, and others which might be mentioned, emphasize the need of caution in the use of springs as a source of water supply for schools.

 

127. Wells.—A dug well can be made safe, provided all water flowing into it comes from a pure source; but it will cost more than many school boards are willing to spend to make it safe.

 

128. A driven well can often be sunk to a much greater depth, thus insuring better filtration. It can be cased in as readily to cut off surface drainage, and it frequently costs less than a properly-constructed dug well; hence the driven well should be preferred in country schools. The only advantage such a driven well would have over the dug well would arise from the fact that, unless the dug well were securely covered and the casing made water tight to the lowest water line, such filtration into the driven well would be accomplished more slowly and more opportunity would be offered for purification. The main source would be the same in either case.

Sometimes, especially in mineral regions, a deep well will draw its supply from highly-mineralized waters, and they may furnish water disagreeable to the taste and even dangerous for drinking. Some mineral waters are wholesome and healthful, but it is always safe to know the chemical constituents of suspected water before using it freely.

Wherever a good water supply can be reached at a good depth the driven well is safer, because there is less opportunity for defilement. The foundation carrying the pump should be of cement and a ready means provided for carrying away waste water.

When a driven well is properly placed and is sufficiently deep to warrant a supply of pure water, a drinking fountain can be attached to the pump, as indicated in Fig. 16-17. This will necessitate a good foundation about the pump and about the drinking fountain, and such an attachment of the foundation to the pump that the pressure tank will be below the freezing line and also deep enough to keep the water cool in summer. Fig. No. 17 represents such a fountain in use. If the well is a driven one, an excavation sufficiently deep and its connections well below the surface of the ground may be made, and the attachment made to the pump in the same fashion as shown in cut.

If a large pressure tank were substituted for the small one shown, not only could a drinking fountain be supplied, but lavatories and flush toilets, and a faucet for hose as a protection against fire or for garden use could be installed, because all that would be needed would be the necessary pipe connections. Naturally the drinking fountain, the tank, or any outlet from this pressure tank could be located where desired.

 

129. Drinking Cups.—Another source of danger lies in the use of the common drinking cup. It is quite possible for the school boards to provide the cheaper variety of paper drinking cups, such as are used in trains, and to have a receptacle for receiving the cups. A move in this direction will be well taken and be to the advantage of the pupils since a few weeks' sickness through colds, measles and other epidemics is to be deplored during the school term.

SANITARY PRIVIES FOR RURAL SCHOOLS

 

130. Privies.—Those who are engaged in the attempt to eradicate disease from our country have concluded that, although they may relieve and cure a great number of people by the proper use of thymol, their work will never end until sanitary toilets on the farm and at the school are constructed; for so long as the soil about holes and school buildings is continually contaminated, these depleting parasites will continue to infect and reinfect the children. But this is not all. We know that typhoid is a germ disease, and that unsanitary toilets, through the agency of flies and infected water, are among the chief means of spreading this disease in cold as well as in warm weather. Proof has been brought forward again and again to show that where absolute cleanliness in this regard prevails, typhoid fever generally disappears. Considered merely from the economic point of view, typhoid fever costs each year would go a long way towards paying for the construction of sanitary and decent toilets. Country schools must teach the truths of sanitation, and they must also set the example of building sanitary toilets and of keeping them in good condition. They must complete their teaching with demonstration of the theory by fact, through co-operative activity with the people.

 

131. Location of Privies.—The usual locations selected for these toilets are the two opposite corners in the rear of the school lot. Under no condition is it advisable to make a single out-building, using one-half for the boys and the other half for the girls. Basements afford the most economical and on the whole the best location within the building for flush toilets. These can be connected with septic tanks elsewhere described.

The second requirement for outside sanitary privies is to construct them in such a manner that the soil around and underneath the building shall be kept free from contamination. The accompanying description of a form of dry privy and the cut represented by Fig. No. 23-24 shows an economical building.

Two dry closets should be erected similar to that indicated. These should be at least one hundred and fifty feet from the school building. Proper construction is of the greatest importance. A house of this size should not have more than two seats. These should have tight-fitting covers, which will stay down except when in use. The door should fit tightly and every window or aperture should be screened with fine mesh wire so as to absolutely exclude flies. The floors of the pit should be covered with about four inches of dry earth before it is used. Each person using the closet should empty on the contents about a pint of dry earth. If the earth is used in abundance, the material in a short time will become relatively inoffensive. When not more than half-full the contents should be removed. From a sanitary point of view the chief requirements are the use of plenty of dust, complete exclusion of flies, and safe disposal of the contents of the pit. One seat should be about eleven inches high to accommodate the smaller children, the other about fifteen inches high to accommodate the larger pupils. The height of the dust bin should be three feet six inches to prevent the boys using them as urinals. Those in the girls' building may be made lower if desirable. Some practicable scoop should be supplied for each bin.

The continual use of outside privy pit closets is to be discouraged on three counts. (a) Under existing conditions of supervision they are seldom, if ever, kept sanitary and objectionable matter is always exposed to the eyes of the curious child. (b) In consequence of the odor which invariably is associated with their use, they are situated some distance from the school building and in winter this is a real hardship. (c) In the spring and fall flies swarm and breed in the privy vault contents. Such flies frequently enter the class room, move about on lunches carried by the children and occasionally interfere seriously with class discipline.

 

132. Red Cross Closets.—For some years past various attempts have been made to overcome one or several of these objections. For instance, the use of the "Red Cross Chemical Closet," now seen in a few schools, overcomes the necessity of leaving the school and if properly looked after is not particularly odorous. It, however, has several real objections, especially in the schools where several ages are mixed, the chief of which is that the contents are all exposed in a white enamel pan some eighteen inches deep and would appear to foster thoughts not normal to the young child. The pan requires removal every second day, which is a particularly objectionable office for the ordinary attendant or janitor.

 

133. Kaustine Closets.—Lately a new type of waterless closet has come on the market, "The Kaustine Closet." One of these systems has been installed in the Experimental Station of the Provincial Board of Health and the conclusion has been reached that its advantages are: (1) It can be located anywhere since no odor is connected with its use. (2) The bowl is planned to be non-soiling and the designer has succeeded very well indeed in making it so. (3) The tank or receptacle provided with bowl can be secured in several sizes and provides for three to ten months' accumulation of effluvia, which can be readily removed by an ordinary galvanized pump and placed on the land. The material removed is an odorless fluid and does not contain bacterial life, owing to the use of a chemical "Kaustine" which an analysis proved to be an electrolitic caustic potash, specially flaked so as not to give off dust when handled.

Charging The Tank.—Each one hundred and twenty-five gallon tank requires thirty pounds of Kaustine. A two hundred and fifty gallon tank requires sixty pounds. A three hundred and seventy-five gallon tank requires ninety pounds. The Kaustine is dissolved in water before being emptied into the tank. Kaustine should be handled very carefully and not allowed to touch the hands or clothing as it is very destructive and causes severe burns. If accidentally burned, apply vinegar immediately. Treat Kaustine as a poison.

With the abolishment of the outside privy the difficulties with the sanitary quality of well water are in a large measure overcome. The water-supply problem is one which can then readily be improved in the ordinary way by improving pumps, well tops, well casings and diversion of surface drainage and any other road drainage liable to affect the well.

SEWAGE DISPOSAL FOR RURAL SCHOOLS

 

134. Sewage Disposal.—A sewage disposal plant for the average country school does not justify the services of a high-grade sanitary engineer. The principle involved in a bacterial sewage disposal plant is very simple. Certain bacteria, called anerobes because they thrive only when kept out of contact with air, have the power to reduce vegetable and animal solids to liquids and gases. Certain other bacteria, called aerobes because they thrive only when kept in contact with the air, have the power to purify this liquid product produced by the anerobes, by oxydizing it and reducing it to pure water and harmless gases. The bacteria necessary for this work exist everywhere, and all we have to do is to provide the best conditions for them to live and multiply.

If the ordinary school sewage is collected in a tank from which light and air are excluded, and from which the liquids are allowed to overflow, a thick, leathery, brown scum forms over the surface, and a black, hard sludge forms at the bottom. Experience has shown that in a month or six weeks a balance is finally struck in which the depth of the scum, and sludge and the liquid between remain constant. In other words, the solid material is liquified at the same rate at which it enters the tank. This is the ideal condition, but one seldom obtained because of lack of understanding of the process going on, and failure to design a liquifying tank giving the proper conditions.

Our first practical problem is to find how these two classes of bacteria work, and to design two separate bacterial laboratories in which, first the anerobes, and after them the aerobes, can work to best advantage.

Our second problem is to design these laboratories so that any one can install them anywhere, and be sure that they will work successfully. Experiment with a liquifying tank with glass sides, when the process going on can be watched by means of an electric light bulb suspended in the liquid, shows the following process:—

 

135. Bacteria at Work.—The solid matter injected with the sewage first settles to the bottom and, as it gradually accumulates, a substance resembling "moss" forms on its surface. This "moss" is filled with gas bubbles and the buoyant effect of these gas bubbles tears pieces of the "moss" loose and it rises through the liquid. As it rises the gas bubbles escape and allow the "moss" to fall again, and in this process of rising and falling it is gradually reduced to liquids and gases. This change to liquids and gases is due to the action of anerobic bacteria and in order to get good results it is necessary that liquifying tanks should be a good bacterial-breeding ground as well as a good bacterial work-shop.

 

136. The Sludge.—The sludge is the incubator, the scum is a protective cover to keep away the deadly air and the space between is the work-shop. A knowledge of the process and study of the plants show that: (a) the scum must be broken. (b) The sludge must not be disturbed. (c) There must be ample work-shop room between. (d) Air must not be forced in with the sewage. (e) Sewage must not come in faster than the anerobes can reduce it.

A careful examination of the cut, Fig. No. 25, will show how sewage (1) enters horizontally, not downward to stir up the sludge. (2) Sewage is injected away from outlet, not towards it. (3) Sewage enters so gradually it settles over the whole surface of the sludge. (4) The area of the outlet is eight times that of the inlet, making the speed at which the liquid sewage travels up to the overflow very slow, too slow to carry solid matter upward. (5) Entrance to outlet is vertical and does not collect "moss" or other solid matter. (6) Wide horizontal overflow enables liquid to get away easily without raising level and breaking scum when raw sewage rushes in. (7) Air and gases which are pushed ahead by the rush of sewage through the soil pipe escape through a vent and are not forced into the liquifying chamber above or below the scum. (8) Air bubbles contained in the sewage work to the surface while the sewage sinks vertically to the outlet level. (9) The whole system is vented through the soil pipe, and all odor and gases are discharged through the soil pipe stack above the roof.

 

137. Liquified Sewage.—Liquified sewage is not purified (oxydized) sewage. It may look harmless, but it is not until it has been oxydized. To run liquified sewage into a tile, cesspool, or sub-well without purifying it is a greater menace to health than to treat raw sewage in the same manner, because the liquid sewage flows through the ground and pollutes well water at a much greater distance. The ground itself becomes "rotten" because the air and bacteria required for oxydizing are found close to the surface only.

 

138. Liquifying Chamber.—Having designed a liquifying chamber so shaped, proportioned, and equipped that it gives the best results, our next step is to purify the liquid sewage which overflows from this chamber. This is an oxydizing process due to the action of aerobic bacteria, and if properly performed the liquid sewage is reduced to a harmless gas and pure water. The best condition for this bacterial action is obtained when the sewage is spread out in a thin film, exposed to air, and excluded from direct sunlight. In large plants the usual means of doing this is through "contact beds" of sand or crushed rock or coke, but in small plants the only practical way is by sub-surface irrigation which is simply letting the liquid sewage seep into the ground through common drain tile laid just below the surface of the ground where the soil is saturated with air. The ground within a foot of the surface always contains aerobic bacteria which multiply enormously when properly fed. They are easily drowned, however, and must have a breathing spell after each ducking with sewage.

 

139. Syphon.—To meet this requirement the liquid sewage as it overflows from the liquifying tank is retained in a syphon tank and discharged periodically by an automatic Quinn syphon into the tile-disposal field. As a result the bacteria which cover the surface of the tile and the surrounding soil are first doused with sewage, and then exposed to air as the water is absorbed into the soil and its place is taken with air from above.

 

140. Filling Trenches.—In heavy clay soils it may be best to fill tile trenches with sand, and possibly to underdrain the fields. The work can be done by any man who can lay drain tile, and the whole system is under ground, no foul odors can escape, and there is no danger of the spread of disease germs through the air by flies. It is a dooryard proposition and may underlie the lawn or garden.

The heat contained in the sewage, and the heat generated in the oxydizing process (which is simply slow burning) is sufficient to keep the ground from freezing in winter.

 

141. Disposal Field.—The connecting pipe from syphon chamber to tile disposal field should be glazed sewer-pipe with cemented joints. The tile in the disposal field should be common four-inch land tile, and should hold the full capacity of the syphon chamber at least. It should be laid practically level so that the liquid sewage will fill all parts and work off into the soil equally. The tile may be laid in a long run, straight or curved, according to the contour of the ground. In clay or other compact soils it is better to have two disposal fields and discharge the sewage into each alternately. This gives the bacteria a chance to get air and oxydize and let excess sewage in the ground. Special tile or caps or gutters are not required. All except the switch may be bought in any country town. The syphon discharge is absolutely necessary to the proper working of a tile disposal field. If the sewage dribbles as it comes in from the liquifying chamber, it is continually absorbed by the ground at the upper end of the drain tile, which soon becomes saturated and foul. The bacteria at this end die from lack of air, while those at the lower end die from lack of sewage to feed on.

 

142. Waterproofing Concrete Tank.—The concrete used in building the septic tank should be waterproofed by the "integral method," i.e., mixing a waterproof compound with the water that is used for mixing the cement.

MODERN SCHOOLHOUSE PLANS

AGRICULTURE IN THE SCHOOLS

 

143. Nature of the Work.—The movement toward making a course of study more suitable for rural school pupils has advanced considerably as is shown by the fact that Agriculture has become established as a regular course in over 1,200 Public and Separate Schools, in 30 Secondary Schools and in 7 Normal Schools. This work is intended to be essentially practical as far as it can be made so within the limitation of the accommodations of the school. As the formal teaching of the subject is essentially new in the schools there has been and is still very little provision made for accommodation and equipment to do effective work.

 

144. Equipment Recommended.—A large portion of the equipment needed for successful work by the classes in agriculture may consist of simple material purchased locally, such as for class room—soup plates, saucers and sauce pans; for garden work—wheelbarrow, lawn mower, hoes, rakes and spades. For special purposes selections from the following may be made: (The Secretary of the Board, or teacher should write to the dealer for prices.)

 

Poultry.—Model of feed hopper, trap nest, model of hen or chicken coop, incubator (may be borrowed).

 

For Bee Keeping.—Standard Longstroth hive complete, smoker, colony of bees in 10-frame hive.

 

For Field Crops.—Set of grain measures. Machine for treating grain for smut. Samples of grains—wheat, rye, barley, buckwheat, rice in hull, oats, etc. Fertilizers. Weed seeds.

 

Horticulture.—Pruning and grafting tools, hand spray outfit, hot bed (may be built permanently), cold frame, combined wheel cultivator and seeder.

 

For Dairying.—Lactometer, Babcock milk tester, milk scales, milk pail (modern), butter utensils for illustration.

 

145. Use of Equipment.—As already indicated each pupil should actually take part in all the operations and experiments. He is expected to use his hands as well as his head in order to make him familiar with simple experimental methods and with the most modern appliances used on the farm.

 

146. Use of Improved Machinery.—The course in agriculture includes "care of machinery," as an essential part. In dealing with this topic the teachers are expected to direct attention to the saving of labor by the use of such machinery as tractors, manure-spreaders, hay-loaders and the like. Problems in arithmetic, making calculations to show a comparison of cost in using improved machinery as compared with older methods should also be a part of the work.

 

147. Beautifying School Grounds.—One good feature resulting from the introduction of classes in agriculture is the tendency to improve the appearance of the grounds. The use of the lawn mower is already noticed here and there. School Boards are advised to plant shrubs and trees with some care in regard to a selection of suitable sorts and to a landscape effect when planting is completed. Swings, teeters, slides, etc., should be provided for the children.

 

148. Farm Mechanics.—In High Schools, even with buildings which were never intended to be used for classes in agriculture, considerable may be done if suitable equipment is supplied. For farm mechanics a portable building, garage-like in form, may be built by the pupils as part of the work. Such a building should, of course, be placed near the school building but far enough away so as not to disturb the regular classes by the noise of hammering or machinery. In such a building there should be modern equipment such as forges, vises, blacksmith's and carpenter's tools, also tools for general repairing.

 

149. Grants.—Provision is made by regulations for annual repayment in full for the amount spent, up to a certain maximum, for practically all the equipment indicated. See Circular 13 of 1917 for Public Schools and High School Regulations of 1914 for High Schools. The following, taken from No. 13 circular, 1917, shows scope:

USES TO WHICH GRANTS MAY BE APPLIED

 

150. "The grants may be expended as follows: For the rental of additional land; for preparing, manuring, or fencing off the garden; for the overseeing and caring for the garden through the summer holidays; for the improvement of school buildings or grounds by purchase of vines; for the establishment of an arboretum or for the reforestation of waste area of school property; for the purchase of a Babcock milk tester, magnifying glasses for seed studies, meteorological instruments, soil tubes or simple apparatus to be used in demonstrating features of the work; for buying tools, such as may be needed to keep up repairs of fences or garden work; for the provision of seeds, bulbs, hot beds, cold frames, grass clippers, lawn mower, etc.; for the purchase of agricultural or horticultural books and charts (not Nature Study charts), or for subscriptions to agricultural or horticultural journals for the school library.

THE FLAG

 

151. The Flag.—No schoolhouse should ever be erected without providing for a flagpole either on the building or on the grounds. No day of national, provincial or local importance should go by without having the flag displayed. Whether the law requires it or not, our patriotism should prompt us to exhibit our national emblem in such a manner that the children may learn both to respect and cherish it.

THE GRAPHOPHONE IN THE SCHOOL

 

152. The Graphophone.—Ten years ago, almost any school trustee would have looked askance at a suggestion from a teacher that a phonograph be introduced in his school. In the last few years, however, with the development of music in so many ways as an aid to educational methods, the instrument is becoming a familiar and very valuable feature in the best schools.

In considering the use of such an instrument, the kindergarten, of course, looms up as the grade where it can be most widely utilized. With the production during the recent years of such an abundance of educational songs and story records the phonograph immediately makes itself felt almost a necessity. These days, too, many a jangling piano indifferently played for marching and for the kindergarten games is being replaced by phonographic music.

This can be supplied in such an abundance and in such varied form that not only can the child be given an early acquaintance with the best class of music, but his musical appreciation may also be developed on sane and correct foundations.

But the use of the phonograph is not by any means confined to kindergartens. As familiarity with the use of the instrument grows, the possibility of use in the higher grades becomes more and more evident. Many teachers like to introduce some of the best and of the newer songs, and this cannot be done in any other way so well as it can by the reproductive instrument. Here again, too, the phonograph can be used to advantage and repeatedly in the various drills, and exercises called for in the school curriculum. One of the newer uses of the machine, and one which is receiving a good deal of attention in the most modern schools in the United States, is for the development of the appreciation of rhythm in writing exercises. Anyone who has studied the psychology of penmanship knows that rhythm is the basis of good writing. Picture then, as compared with the schools we grown-ups knew, a modern writing class listening to appropriate and educational musical selections and at the same time practising the required exercises. This is one of the ways in which the tiresome things of the old school days which led to truancy among the boys, and sometimes to malingering among the girls, are gradually being done away with.

The use of the phonograph, however, is not confined to the inside of the school room alone. In these days of group games, illustrative dances, and other forms of helpful, physical exercises leading to a development of self expression and initiative, the larger and more powerful forms of the machine are coming into ordinary use. Placed in a corner of the playground, with the breeze blowing from the instrument to the children so as to carry the tone, the phonograph such as supplied for school use will readily carry music for one hundred children, and will delight them as well as stimulating and aiding in their exercises.

Nor need there be any difficulty in transporting this wonderful producer of all kinds of music from room to room and from the school to out-of-doors. Latterly very reasonably-priced machines are supplied mounted on wheels which may be readily rolled anywhere, or even taken up and down stairs with very little difficulty.

VOCAL MUSIC

 

153. Extract from Ontario Department of Education blue book. Courses of Study and Examinations, session 1918-1919. Page 30.—"The special object of the course in vocal music is to enable the teacher in training to cultivate in her pupils a taste for good music, to provide an ennobling means of emotional self-expression and to afford an agreeable change in the routine of school work and the occupations of daily life."

In communities where the sentiment in favor of music in the school has been developed, the teachers of some grades have, by various means, on their own responsibility, raised the funds necessary to provide a piano or phonograph for their schools. They are used in accompanying the songs in the kindergarten and primary classes, in rehearsal of choruses by senior pupils, in accompanying and solo work at the Christmas and June closing exercises, and in providing music for the daily marches during assembly and closing of school. Suitable instruments, in plain cases, cost from $250 upwards. Player pianos, suited to all of the above purposes and to illustrate more advanced musical composition, cost about $550.

Throughout the courses the teacher should seek incidentally, through the songs, games, talks, and stories, from current events, and by her own example, to establish good habits in morals and in manners. Study of nature through songs, conversation, and observation, circle talks and songs, rote singing of simple melodies relating to the home, parents, God, nature and country.

THE STEREOPTICON IN THE SCHOOL

 

154. In these days when education "through the eye" is being strongly and universally emphasized, the stereopticon, which has long filled a large field, is being readily adapted to many more and wider uses, particularly in the school curricula. The aggressive Sunday Schools, perhaps, have shown the way in this movement. Ten or fifteen years ago, when the school lantern was a cumbersome affair, requiring more or less expert attendance, no one thought of the possibility of using it in daylight, except in universities or the higher grade schools where special provision was made and the students sat in stygian darkness while various experiments were carried on. Now, with a simple and comparatively inexpensive lantern, which can be carried from room to room and utilizes its current from any electric light socket, and providing good results with even lightly-screened windows, the possibilities of use are multiplied many times.

The urban schools in Ontario have taken up the lantern to some appreciable degree but the field in the rural schools is still practically unoccupied.

If our trustees would only give some consideration to the fact that a history or geography lesson could be made infinitely more effective by the presentation of a few slides presenting special features in picture, not only would children and teachers be happier but progress would be astonishingly greater. And in these days when slides can be purchased, rented, borrowed, covering almost every conceivable subject there need be no difficulty in securing presentable material.

Think, for instance, how much more the teacher's story of the events of the war would have meant to Susie Smith or Jimmy Brown if a slide of the famous Cloth Hall at Ypres or others of Antwerp or Ostend accompanied the lesson. Again, an enterprising teacher can utilize the smoked slide to manufacture maps and sketches covering specially pertinent points.

In the rural schools, particularly, the lantern may be made a wonderful force in hastening the development of the movement making the school a community center. Nowadays the school is used for debating societies and neighborhood meetings. Think of the possibilities of a lantern in the hands of an ambitious teacher or an energetic trustee in the winter evenings. For a couple of dollars including carriage, a set of slides to occupy practically a whole evening can be obtained to cover almost any subject the people of the community may be interested in, such as a trip around the various sections of the British Empire, any one of half a hundred manufacturing processes or an exposition of the best agricultural methods. Almost without exception these sets are accompanied by carefully-prepared and authoritative notes so that almost any one that can read appealingly becomes a lecturer automatically.

With a series like this the dealers are usually glad to supply a few humorous slides and these, with two or three illustrated songs, provide a program for a most interesting evening.

Even the communities where electricity may not be available may utilize the lantern in the same way since the development of safe and simple acetylene apparatus, remarkably moderate in cost, provides quite adequate illumination.

Your school, no matter how small, could have its work and usefulness made vastly more effective by the use of a lantern. And when $50 to $100 will provide a thoroughly satisfactory and complete outfit it would seem that trustees everywhere might advantageously consider seriously the matter of supplying one.

TELEPHONES

 

155. Telephones.—For perfect co-operation between principal and teachers, the school rooms must be so linked together that they will be able to get into instant communication with each other. A principal cannot direct efficiently unless he has at his disposal a private telephone system that enables him to keep every room at his finger tips. Each day problems arise that require the attention of both principal and teacher, and if one must leave an important post and journey to the room or office of the other, then much valuable time is being lost at the expense of the community.

A small private telephone system installed in the school allows each of the teachers to communicate direct with the principal, and the principal to communicate direct with any one of the teachers so that principal and teacher may transact the important matters that arise, and at the same time to remain in complete control of affairs in his own room.

Telephones are a great advantage in a school, just as they are in an industrial organization. The bells on the telephones may be used in various ways for signalling classes, fire drills or dismissals, as they are all controlled from the principal's telephone.

The outlay for such a system is small. The apparatus may be purchased direct from the manufacturer and the first cost is practically the only cost since the only maintenance necessary is the replacing of the dry cells every eight months. This is a simple operation, as these dry cells are contained in a single box and require no expert attention.

MOTION PICTURES

 

156. "The motion picture machines are coming into our schools more quickly than most of us appreciate," an official closely in touch with the development of the industry in Ontario said. "Trustees who make any pretensions of keeping abreast of better things for the schools under their control should make a study of the matter."

As a matter of fact some of them are. Films have been used already to a limited extent in some of the schools in Hamilton, and provision has been made, in several schools lately erected, for the wiring of the assembly halls with a view to the operation of motion picture machines. Beamsville High School and the new Technical School at Hamilton, Ontario, are being similarly fitted, and the Board of Education of Toronto is providing for the fitting up of a room in every one of its main schools for the same purpose.

There are two or three very good reasons for this activity in the Province of Ontario but, once established and working here it will only be a short time when the other provinces of the Dominion fall in line. It is well established that in the production of purely educational films Ontario leads the world. Of course there has been a limited number of so-called educational pictures produced by some of the American picture companies, but our own Provincial Government, within the last year, has gone into the matter with a good deal of energy and now has its own Provincial Picture Bureau.

Photography is proceeding constantly and within a year the films available will be quite comprehensive. As it is now about sixty films have been completed and are available for projection at very nominal rates. So far these have been used largely by the Agricultural representatives of the various counties in presenting improved methods and in some cases the schools have been utilized for the gatherings. With the spread of the Government's Hydro-Electric system through the rural districts of the province, making the use of current feasible in so many more rural districts, the field is rapidly widening. Until recently practical difficulties in the way of large initial expense and insurance regulations have been a barrier to any general use of the "Movie" in the way suggested. These factors, however, are being rapidly overcome.

Very practical machines are now being manufactured which can be handled by amateur operators with little more difficulty than the more familiar stereopticon, and non-inflammable film is also being used, thus doing away at once with the bugbear of the fireproof cabinet as required by the insurance regulations.

Almost every day one notes in our papers references to the way the motion picture should and will be used, and it is certain that local opinion will be well behind any trustees who measure up to the opportunity to give the children of their schools the newest methods of education as presented in the educational film movement.

HEATING AND VENTILATING

 

157. Foreword.—It is not our intention within the scope of this article to design a heating and ventilation system. This information may be found in the works of Carpenter, Baldwin, Snow and others. Our object is to provide such information as will give the members of the School Board a fairly comprehensive knowledge of the different heating and ventilating systems that are usually installed in Public School buildings. It is essential that at least one member of the Board should have this knowledge, as frequently expensive systems are installed in schools and these are never properly used. On one occasion the writer visited one of the largest and best known Public Schools in Canada and found that the janitor was running the fan only during recess and at the noon hour. In answer to our query why this was done, he said that he had been instructed by the principal to "air" the school by means of the fan instead of opening the windows. When we told him it would be better if he would run the fan during the time when the building was occupied and if he wished to "air" the school at any other time, that he might do this to advantage by opening the windows, he referred us to the principal, who said that this was the way he understood the system was to be run, as otherwise the cost of heating and ventilating the school would be high. In several interviews with members of the School Board they said that they were satisfied with the heating and ventilating system, and that they had found the best results were obtained by operating the system as above. Here was a case where the object aimed at in the design of this heating and ventilating system was not obtained and the money spent in the installation had been simply thrown away.

In many buildings the ventilating system is an integral part of the heating system. An example of this is where a building is heated and ventilated by hot air, also by the so-called hot-blast system.

In other heating and ventilating systems while the ventilating section may be incorporated with the heating they are not inseparable in design or in practice.

With the "warm air" and "hot blast" systems the heating of the rooms is effected by circulation, whereas with other systems it is by radiation; air only being supplied for ventilation. However, in the comparatively mild days of spring and fall, a building may be made comfortably warm by the operation of the ventilating system only.

 

158. Employment of Independent Engineer.—It is our recommendation that the School Board employ an independent consulting engineer to lay out the heating and ventilating system, or to employ an architect who has made a special study of the subject. Frequently the practice is to have the plans for this very important part of the building designed by an engineer who is employed by some manufacturing concern and the specifications, instead of covering the best material for the purpose, only mention material manufactured by the firm employing this engineer. An independent engineer of experience will design a system and specify only the material consistent with the amount the School Board is prepared to spend. More than once it has been the experience of School Boards to have a plan and specification presented for their approval, this specification demanding certain specialties that are only properly used in connection with a system entirely different to that required. These specialties may be valueless in connection with the system specified, or proper provision may not be made for such special requirements as are essential to the proper working of that system.

The engineer's duty should not cease with the preparing of plans and specifications. He should also be employed to inspect the plant from time to time during the installation, and should also make a final test of the plant and instruct the attendants in its proper operation.

SYSTEMS OF HEATING

 

159. Warm Air.—In small schools where the appropriation is not large a warm air system of heating and ventilating may be used. It is not recommended for buildings having more than four rooms.

Separate furnaces should be provided for each side of the school, and the furnaces placed under the ducts which should be installed along one side of the room. These furnaces must be extra heavy as the demands made on furnaces on school work is very great. With the ordinary light type of furnace a hard fire, followed by a sudden cooling, causes openings of the joints, thus allowing the escape of the products of combustion into the class rooms. If the furnace is large and heavy the slow fire will give added life to the apparatus and a better quality of air will be admitted into the rooms. The furnace should be brick-set and be equipped with vaporizers. Herewith is given a description of how the warm air system works.

The furnace is set in a brick chamber having openings about twelve inches high at the floor line for the admission of cold air, and openings also at the floor line into the fresh air flues. The flue openings are for the purpose of allowing a certain amount of unheated air to enter the fresh-air flues. Air from outdoors is admitted to the fresh air room and passes into the heater chamber and over the furnace. Here it becomes warmed to the required temperature and enters the fresh-air flues. From these flues it escapes into each classroom at about eight feet from the floor line. The fresh air stacks are equipped with mixing dampers controlled individually from each classroom by means of cable and chain. One operation of the damper shuts the cold air bypass at the fresh-air flue and the reverse operation closes the opening at the warm-air furnace. In intermediate positions the damper will temper the incoming air to the required temperature.

The foul air is drawn from the room at the floor line and at the side of the room in which the fresh air enters. The foul air drops into a chamber in the basement, and from thence to a large brick stack. This stack generally contains the smoke-flue. The heating of the flue tends to create an up-current of air and this, together with the relative difference in the temperature of the inner and outer air, creates sufficient draft to draw the foul air from the building.

In the morning and at other times when the school is not occupied, the door of the main vent shaft is closed and the air returning from the classrooms is permitted to pass by way of the fresh-air room back and over the furnace.

Where a system of this kind is installed care must be exercised to see that the janitor always leaves the opening into the vent stack uncovered when the building is occupied. The temptation is to save fuel by closing this door. The main vent shaft should be always supplied with a small stove (for use in warm weather only) so that a positive up-draft can be obtained by way of this shaft.

It is only where the funds will not permit of the installation of a more modern plant than a hot air system that this type may be recommended. There are certain defects in this system which cannot be overcome.

For instance the air must be raised to a very high temperature and since as the air is brought to the furnace chamber at a very low temperature, the percentage of moisture contained in the air is very small. In raising the temperature of the air it becomes dry and even parched. Such air, when introduced into a school room, will absorb moisture from the skin and from the lining membranes of the eye and ear passages.

It is difficult to add moisture to the air by means of the ordinary vapor pans supplied with the furnace. There are several humidifying devices on the market that may be installed in connection with warm air furnaces, and some one of these should be installed in every case.

These vaporizers are often made in the form of a vapor pipe extending up over the dome of the furnace. The water is supplied by an automatic supply tank fitted with a ball cock, thus assuring a constant supply.

A simple test of the proper proportion of vapor in the atmosphere may be made as follows: Take two ordinary thermometers. Wrap the bulb of one in a muslin sack, having one end of the sack in a glass of water. The reading of the dry-bulb instrument should not differ more than from 5 to 10 degrees from that of the wet-bulb thermometer.

Later in this article, the subject of humidity is taken up at greater length, but as one of the greatest objections to the hot air system is the dry quality of air delivered, it is only expedient that the question of humidity should be touched on in this section dealing with warm air heating systems.

With warm air heating systems there is also the difficulty of proper distribution of heat. On the windward side of buildings the rooms are often not heated, while those on the lee side may be very warm.

 

160. Combination Systems.—The claim is advanced by the advocates of this type that the heating of the building may be effected by means of direct radiation and that the air for ventilating may be warmed by passing it over the furnace part of the steam or water generator. While this may be installed at a lower figure than a steam or water system, the objections to the quality of air delivered in warm air systems also are to be considered here.

 

161. Steam.—The most common method used in the heating of large office and apartment buildings is that of employing direct steam radiation. The radiators are located along the outside walls, in the hallways and in such other exposed places as are subject to the cooling effect of drafts, etc. In heating a school building, the radiation can be placed in a similar manner and provision made for bringing fresh warm air into the rooms either on the gravity, vacuum, or plenum principles. The radiators are supplied with steam either by means of the one-pipe or two-pipe system, or such other modifications of these systems as are on the market under different names.

The usual system of piping for steam systems is the so-called one-pipe. In this the radiator has one tapping, and that at the bottom. The steam is admitted to the radiator through this opening and the condensation returns back through this same opening to the steam main. The main is simply a complete circuit from the feed opening of the boiler to the return opening. The steam that is generated in the boiler passes up into the main and condenses in the radiator. The condensation returning flows by gravity back to the return opening of the boiler. When the pipes are arranged with sufficient fall and are of ample size, a satisfactory system of piping may be arranged in this way. The one-pipe system is the cheapest form of pipe installation and for a building not requiring very long runs, can be installed to advantage. The average journeyman is more familiar with this system of piping than with almost any other. Therefore there is less danger of a faulty installation with the one-pipe system than with another system installed by men who are not conversant with its principles or where the installation is not made under the supervision of a competent engineer.

One of the objections to the one-pipe system is that a radiator must be turned all off or all on. If there is a full steam pressure on the boiler and the valve of a cold radiator is turned on, the condensation that is in the radiator meeting the incoming steam causes a hammering noise.

With the one-pipe steam job there are several systems of venting the radiators, the most common being that of automatic air vents. These vents are fitted with expansion members so that the air can escape from the radiator, but steam coming in contact with this member expands it and prevents the steam escaping. In many of these vents no provision is made to prevent the return of air to the radiator so that when the pressure drops in the system the air rushes back through the vent openings and before the radiator is filled with steam again this air must be displaced. Other air vents on the market close against the return of air.

In some systems the air vents are connected with an air line, this being connected either with an electric or hydraulic pump in the basement. With other systems this air line vents into the boiler room or into the chimney. With a pump system there is a vacuum created in the radiators and this means that steam will be generated in the boiler at low temperatures.

In course of time the expanding element in the air vent becomes defective, thus requiring adjustment. Some air vent manufacturers make these vents so that they cannot be opened by unauthorized persons, thus making for long and effective service.

Cheap air vents should never be used except on temporary work.

 

162. Two-Pipe.—In the two pipe pressure system and also in the two-pipe vacuum system the installations are made as the name would imply, by means of two pipes. One pipe supplies the steam and the other pipe carries away the condensation, and in certain systems also air from the radiators. Some of these systems have the feed pipe at the top of the radiator and some at the bottom of the radiator. In all cases the return pipe is at the lower end of the radiator and opposite to the feed end.

There are so many two-pipe systems on the market under different names and differing somewhat in principle, that an extended explanation, or even a slight mention, of these is almost out of the question within the space at our disposal.

The two-pipe pressure system is generally installed with a valve at the feed and return. In some cases the return valve is in the form of a trap. This trap is either built on the flotation or expansion principle. There are many thousands of installations of this type in use in connection with pumps and also to a limited extent installed as gravity systems. For large installations these systems are highly recommended, but for small installations where the services of a competent attendant cannot always be obtained it is better to have installed some of the better known gravity systems of steam circulation. There are several modifications of the vacuum vapor systems on the market. All of these systems have their merits, but they are not all suitable for school work. Frequently, salesmen of competing houses will point out defects in other systems and the points to which they take objection can generally be explained away by the salesmen for the goods condemned. It is here that the advice of an independent engineer is to be desired.

Herewith, is a brief description of some of the gravity vacuum vapor systems on the market:—

In these systems the chief point is the return trap. The traps are placed on the return end of the radiator and are fitted with a flotation or expansion member. The steam is admitted into the radiator at the opposite end to the trap. The air that is in the radiator is driven ahead of the steam and passes by way of the trap to the return line. The condensation also follows this same passage. When the steam strikes the trap, it closes, thus preventing the escape of steam to the return line. The air is drawn from this line into the atmosphere and the condensation is returned to the boiler.

If there is sufficient headroom above boiler and this piping is properly proportioned it works well, but if there is not sufficient head there is a danger of the system finding a dead center and becoming inoperative.

There is also a system on the market where the specialty is the feed valve, these valves being proportioned so as to admit only enough steam to the radiator to fill it. The theory is that before it reaches the return end of the radiator, the steam is so condensed that there is little chance of any of it finding its way into the return line. The trap on this system is simply a water-seal with a bypass for air. The traps connect to a return air line in the basement, this return line venting to the atmosphere and connecting with the boiler below the water level. The boiler, when installed with this type of system, must be equipped with a very sensitive automatic damper regulator, so that at no time will there be much pressure developed. Otherwise the seals in the traps are blown out and the steam enters the air line and escapes into the atmosphere.

In another system, with graduated feed valves, the return end of each radiator is fitted with an elbow with a small check. The check prevents the return of steam or condensation from the air line to a radiator that may be turned off. This system, inasmuch as the return line feeds to the atmosphere, is open. The end of the line is equipped, however, with an expansion member or controller, so that if steam enters the return line, when pressure is generated at the boiler, the expansion member is closed and there is no danger of steam escaping.

Where systems mentioned here as vacuum vapor show that the principle worked on is the graduated valve these valves mast be installed in accordance with well-defined rules, otherwise they will not give satisfaction.

 

163.—Hot Water.—In many localities a marked preference is given to hot water heating systems and there are certain outstanding merits of this system that can hardly be offset by its defects.

The principal defect of the hot water heating system is that there is so much water to heat that it is impossible to get quick response to firing. There is also danger from frost. Again the radiating surface must be much greater than with the steam system. But the quality of heat from hot water radiation seems to be more pleasant than from steam radiators.

Hot water heating systems may be installed on the forced circulation principle, whereby the size of the radiators can be materially reduced, as may also the size of the piping. In this system a steam boiler is used in connection with a hot water generator; steam is supplied directly from the boiler to the ventilating coils, this being the only part of the plant where steam is used as a direct heating medium. There is also a main connecting the boiler to the "generator." The generator is generally made of copper or brass tubes. The steam passes through the tubes, and surrounding the tubes there is a body of water. The generator is supplied with a feed pipe to the radiators and return pipe from them. Many of these systems have been installed throughout the Dominion of Canada and are giving excellent results.

VENTILATING SYSTEMS

 

164.—It seems almost unnecessary to write of the importance of having a well-designed and properly-operated ventilating plant installed in every school building. These buildings must be ventilated while they are occupied and some system must be installed to maintain a certain standard of purity in the air breathed by the occupants for so many hours during the day. We require an adequate air supply and the maintenance of a comfortable temperature. These two conditions may be tested by an anemometer and thermometer readings. The making of these two tests are about as far as an engineer employed by a manufacturing house will go. To properly ventilate a building requires a great deal more than this.

E. V. Hill, M.D., Chicago, says: "There must be air movement sufficient to remove the areal envelope about the bodies of the occupants; a relative humidity of thirty-five to fifty per cent, depending upon the temperature; a bacterial content not exceeding 10 colonies on a two-minute plate; a satisfactory CO2 standard; a dust content not exceeding 100,000 particles per cubic centimeter as tested with a portable dust counter. The air must be free from odors and the distribution of the incoming fresh air must be uniform. The room must be free from objectionable drafts."

These requirements may be met either by the installation of a mechanical or gravity ventilating system. This statement is made in spite of the fact that there has been considerable complaint regarding the working of both or either of these systems. Frequently the teachers will complain to the Board of the very unsatisfactory condition of the air in the room even though the ventilating system is supposed to be in operation. When complaints of this kind are brought to the attention of the Board it would be well to have tests made so that proper arrangements for the ventilating of the room may be provided.

 

165. Gravity Ventilating.—A gravity system is more difficult to design than is the plenum or vacuum systems and all of these systems have their staunch advocates. The writer has visited many schools for the purpose of examining the ventilating plans and has found that where gravity systems have been installed to provide for the most unfavorable as well as favorable conditions, these systems work well. Much greater flue area must be provided for gravity systems than for either of the other two systems mentioned. The area of the gravity flues must be reduced by dampers as the weather grows colder, otherwise a greater volume of air will be passed through the building than may be required. The lines designed for a plenum or vacuum system cannot be used for the gravity system as they are too small.

 

166. Direct-Indirect.—In this system, certain radiators in the room are of the direct-indirect type. These direct-indirect radiators are placed on special bases, these provided with an opening for air supply from the outside. Cold air is drawn through these openings, is heated by the radiator and passes into the room. In opposite walls at about six feet from the floor-line there is placed an opening into the vent stack. There is also an opening into the vent stack at the floor line. With the direct-indirect ventilating system in a room a practical displacement of foul air is the principle worked upon, whereas with the plenum system, diffusion of the foul air to the point of comparative purity is the object aimed at.

Where the direct radiators are used in the rooms for heating purposes only, fresh air is discharged from the fresh air flues into the room at about eight feet from the floor line. The fresh air flues are supplied with tempered air either from the central chambers or from chambers placed at the base of the stack. (In the gravity ventilating system, it is necessary that these radiators be placed at the base of the stack so as to eliminate the necessity of having long horizontal flues.) The general arrangements of the fresh air flues in reference to the foul air exhaust from the class rooms is primarily the same with the gravity as with the plenum system. The foul air escapes from the room at the floor line into the vent shaft. There should also be an opening in the vent shaft at about seven feet from the floor line. This is to be tightly closed during winter, and is used only for ventilating purposes during the summer, when it is desirable that the ventilation be secured to a certain extent by means of open windows.

The principal defect in gravity systems is due to the fault of no provision being generally made for summer ventilation. It is well known that the movement of air in a closed room is different in the summer to the movement in winter. It is therefore necessary that provision be made for this either by the arrangement of special window ventilation or by the extraction of the foul air from the building by way of heated flues.

If there is a direct extraction of foul air, the vent flues should have an opening about seven feet from the floor line. This should be fitted with a damper so that it may be closed during the winter months. The windows should have draft boards just above the stools, so that the air entering by way of the windows will not cause uncomfortable drafts.

 

167. Hot Blast.—In the hot blast heating system, the radiators are placed in a casing under each window with openings in top and bottom of the casing. The air is drawn from the outside into a primary heating chamber where it is heated to a temperature of 50 or 60 degrees. It is then driven through a system of ducts to each of these radiator stacks under the windows, passing over these radiators it becomes heated to the temperature required to off-set the cooling effects of the windows, etc. There is an arrangement of dampers at each radiator so that the temperature of the incoming fresh air can be controlled by mixing with the tempered air at the base of the radiator. In some cases the air is exhausted from the room on the inside wall opposite to these radiators in the same manner as the gravity system of direct-indirect, and in other cases the air is exhausted from the room through an opening on the same side of the room as that on which the radiators are placed.

It has been generally found that with hot blast systems, where air is driven into the room on the warm side of the building, there is an unsatisfactory standard of temperature maintained at different parts of the room. For instance along the inside walls it may be seventy-five degrees while over at the windows it may be as low as sixty. Generally, with a hot blast system, the safest principle to follow is to drive the warm air up in front of the windows.

 

168. Fan Systems.—The ventilating of nearly all large buildings to-day is effected by use of fans, either installed so as to work on the plenum or vacuum principles, or as a combination of both of these. In simple words, the plenum system is the "blow through" whereas the vacuum system is the "draw through."

With the vacuum system air leaks into the building through every opening, and because of this, no close calculation of the amount of air handled can be made. It is also harder to heat a building that is ventilated on the vacuum principle. All toilet rooms should be ventilated by a vacuum fan, but the rest of the building should be ventilated on the plenum principle.

Where a plenum fan is installed, the amount of air handled can be accurately measured and if the air passages are properly proportioned with suitable inlets into and exhausts from the rooms, there is no reason why this system should not meet all of the demands, made on it under all conditions of weather.

 

169. Fans.—In school work and in fact in all buildings fans should be large enough so as to run at a comparatively low speed, consistent with proper pressure conditions, so that the noise of the fan will be reduced to a minimum. If the fan is placed on a well-insulated base and kept free from walls, etc., with the galvanized iron ducts leading from the fan connected to it by a flexible duct there will be little noise in the building. Where fans are installed and are not giving satisfaction, it is generally due to the fan being so small that it must be run at an excessive speed.

 

170. Air Channels.—The fresh air ducts should be placed in such position that they can be readily inspected. They must be kept clean and the fresh air supply must be taken from a point sufficiently remote from dust and dirt. If possible, it is best to take the air from the south side of the building, this air being at a higher temperature than that taken from any other side. The fresh air room should have walls of glazed brick or some other material of like nature.

 

171. Humidity.—It is claimed and with good authority that in a room where the proper standard of humidity is obtained a much lower temperature can be made comfortable than when the proper proportion of vapor is not present. It is not our intention to go into this question to any extent, but we recommend that some provision be made for supplying the proper humidity to the air. In some cases this humidity can be provided for by means of spray pipes placed in front of the heating coils in the ventilating chamber. In districts where there is much smoke and dust it will be necessary to provide an air washer. Humidifiers must be equipped with humidstats. Otherwise precipitation will occur in the rooms and the excessive humidity makes for a great deal of discomfort.

 

172. Thermostats.—Automatic control of the temperature of the class rooms is greatly to be desired, and where the funds will permit of a complete installation an automatic heat-controlling system should be used. But here is one point where the Board cannot attempt to economize by eliminating certain features that are absolutely necessary, and unless the funds are sufficient to cover not only the control of the radiators in the class rooms, but also the individual control of the fresh air supply to each room, money is thrown away in attempting to instal an automatic temperature-controlling system. The control of the radiators should be on the thermostat controlling the fresh air supply because it is manifestly impossible to control the temperature of a room on the south side of a building and other rooms on the northern side of the building when there is only one thermostat controlling the temperature of air for the whole building.

If the thermostat is set at 75 degrees at the heater stack; figuring that air will enter the room at 70 degrees, a room on the south side of the building with the air entering at this temperature will be too hot, and it may be impossible to raise the temperature of the room on the northern side by the radiators alone while the ventilating system is in service.

 

173. Boilers.—In selecting a boiler for a school heating plant, many things should be taken into consideration. It is worthy of note that a boiler that may be entirely satisfactory for some other type of building may not be suitable for a school. There are various types of boilers on the market, many of them differing only in name and not in construction. In general it may be said that it is not advisable to instal a soft-coal-burning boiler in a school building, because even where these boilers are equipped with smoke-consuming devices the dust caused by the soft coal is a very objectionable feature. Smoke-consuming boilers require careful attention so that they are smoke-consuming. If the boiler is situated in a separate building, apart from the school, the soft coal nuisance is not as evident as where the boiler is situated in the basement under the school.

 

174. Cast Iron Sectional.—One of the best known types of heating boilers is the cast iron sectional. While these boilers are efficient as water boilers, it has generally been found that the boiler has not always been suitable for steam, because of the danger from fracture caused by the variations in the water-line. Generally there is very little steam space in sectional boilers. Some of these boilers are equipped with headers so that the steam is separated from the water in the boiler, but on account of the unequal expansion between the header and sections, there is the danger of leaks starting at the points of connection. As a rule, it can be said that in the hands of a careful attendant, the cast iron sectional boiler will give satisfaction.

 

175. Return Tubular.—In specifying a return tubular boiler there is no danger of an engineer being called to account for favoritism, since these boilers are made by nearly every boiler shop in the country. The boiler must be brick-set and unless the brick work is repaired frequently, many air leaks occur in the joints, thus permitting air to enter the combustion chamber, destroying the efficiency of the apparatus. There are certain rules regarding the capacity of return tubular boilers and size for size the manufacturer of one boiler cannot claim any greater efficiency for his boiler than can the manufacturer of any boiler of the same type. In the return tubular boiler the fire passes along the under side of the shell and back through the tubes to the front of the boiler and thence into the flue.

 

176. Fire-Box.—The fire-box boiler is constructed so that the fire passes first through the tubes and then back over the shell of the boiler. In selecting a fire-box boiler it is well to compare the different manufacturers' ratings on these boilers, as nearly all fire-box boilers are constructed similarly in every detail. The boiler is made as a portable as well as a brick-set boiler.

 

177. Water Tube.—In installations where the funds are sufficient, a water-tube boiler should be installed. The heating surface in a water-tube boiler is of much greater value than the heating surface in a return tubular or fire-box boiler. All of the heating surfaces in a water-tube boiler are direct, in the return tubular boiler, most of the heating surface is indirect.

In examining the reports made by different boiler-inspecting concerns, we note that where accidents have occurred with water-tube boilers it is only to the extent of rupturing a tube. Of course with low pressure work there is no great danger of violent explosion with any type of boiler, because the Government regulations set the safety valves at 15 lbs. pressure. Still, with the water-tube boiler the accident is only to the extent of a tube starting, whereas with a tubular boiler it may be that the whole boiler will be wrecked.

Finally, we wish to say that when a Board is approached by the representatives of the various boiler manufacturers, they must guard against being influenced by the agent's disposition to point out the defects of the boilers he is not selling. Frequently a claim will be made that the boiler cannot be repaired and cleaned thoroughly. As a rule manufacturers of these boilers have simple arrangements made to overcome what would seem to be a defect of their apparatus, and it is well when the Board have some defect in a boiler called to their attention to have it taken up with the firm manufacturing that boiler. When an apparatus has been on the market for some time it only stands to reason that any such glaring defects would be readily seen and remedied by the makers of the apparatus.

 

178. Janitor Service.—One of the most, if not the most, important part of the heating plant of a building is the human element. Engineers and manufacturers may spend a great deal of time and money in devising a heating plant that will give the highest rate of efficiency at the lowest possible cost, only to find that this system in the hands of an ignorant or prejudiced janitor, is not giving the satisfaction expected of it. As much care should be taken in the selection of a janitor as in the selection of the principal of the school. Too often a man's ability to sweep and keep the building clean is the only recommendation he has for the position.

TEACHERS' RESIDENCES

 

179. The teachers' residence has become an important feature in the administration of rural schools, because the people take a decided interest in it. They feel that the teachers' presence has a marked influence upon the community and that this influence is broadened and strengthened when the teacher lives in a model dwelling and works under the most wholesome conditions. There are many good reasons why such residences should be provided in our rural districts. In a great many cases a young woman teacher is forced to board and share her room with a daughter in the family, where heat is lacking in winter and where no opportunity is provided for self-improvement or study. If good teachers are to be secured and retained some effort on the part of School Boards should be taken to see that they are comfortably housed.

The accompanying sketches show suitable plans for moderate cost residences that would be in keeping with any school building and would also add to the appearance of the grounds.

TEACHERS' SALARIES

The question of the hour. It is a trite saying that a nation's potential wealth lies in the youth of the land.

In this period of reconstruction, after a long and exhausting war, it becomes necessary for a nation, in the fierce struggle for a place in the commercial world, to utilize and fully develop all the latent forces at its command. The only efficient instrument that a country can use and apply readily to all the youth is its system of education.

The task of making the different schools meet these requirements, making them efficient and thorough in every department, rests, in the first place, largely in the hands of Trustees and Boards of Education. The best-trained and most capable teachers that a country can produce should be secured at any cost and the Boards of Education must realize that this cannot be done unless the remuneration offered is, in some measure, commensurate with that offered by other professions. To do this requires some study and Trustees should be willing to make themselves familiar with the whole question.

It is a matter of history that, to prepare for entrance into a Normal School, a student must spend, on an average, four years in High School work and one more in the Normal School itself before beginning to earn a living. And yet stenographers and nurses—to mention two classes only—earn at least a half more and require shorter time with smaller cost to train for their professions. In the case of High and Continuation Schools the teacher's conditions are no better. After passing the entrance to Normal Schools for matriculation, it takes at least six years of hard work to obtain the academic standing required for a specialist and one more year must be spent at the Faculty of Education before one can begin to teach. This makes seven years in all after obtaining matriculation standing. No other profession (except that of the church) requires so high a standard. Yet the salaries paid to High School men are not half—in many cases not a quarter—of those paid in any other profession.

This matter of remuneration must be dealt with in a fair, broad-minded way if the best men and women in the country are to be secured. Such a course would produce a harvest yielding one hundred fold.

CONSOLIDATED SCHOOLS

 

180. History of Consolidated Schools.—This bulletin does not permit of a lengthy discussion of Consolidated schools. A few facts may therefore suffice: Consolidation was introduced in New England more than forty years ago, because of the gradual exodus to the cities and the West.

Children have been conveyed to school at the public expense in the Atlantic coast states since 1869. The system is now operative to a greater or less extent in forty-six states and some in the middle west have almost put an end to the small school. Thus Ohio has hundreds of Consolidated schools. Indiana heads the list with more than six hundred and Michigan, Illinois, Iowa, Nebraska and Minnesota are all making good headway. Kansas has nearly two hundred. North Dakota has one hundred and ninety. Oklahoma, although a new state, has had a substantial growth in Consolidated schools. Westward, Utah, Idaho, Colorado, Washington and other states have many excellent Consolidated schools. Nor is the South any less active. All southern states have Consolidated schools and transportation of children. Clear down to Florida we find them. In Louisiana whole counties have every school consolidated. This is all the history necessary, and consolidation has proved wonderfully successful in most of these states.

 

181. Relation to the Rural Life Movement.—The Consolidated school takes its name from the fact that its establishment was originally due to the union of two or more school districts, that two or more teachers were employed in the same school building, and that, in consequence, academic work done in these schools was of a better character than that previously done in the little district school taught by one teacher. Our industrial life is experiencing fundamental changes. The phenomenal growth of cities has been coincident everywhere with growth in manufacturing industries. These have produced modern labor-saving machinery for the farm and have consequently reduced the demand for farm labor. Local industries have died and rural craftsmen have flocked to the cities. Worst of all, untold numbers of farm youth, without whom the rural communities will languish, are drawn thither by the glamor of the city life and its opportunities for advancement. The drift of country population, which had its beginning in economic causes, subsequently, was continued with increased momentum from purely social reasons.

The crude, though virile school of pioneer days, with its man teacher and many pupils has passed away. In its place is the small, poorly-taught and poorly-supported school of the average community. Careful investigation shows that the old-time lyceum and spelling bee, the neighborhood singing school and debating society have had their day and no modern substitute is offered.

Country life has gradually become shorn of its human satisfactions, where such were at one time known. People are moving to town because the rural school does not offer the spiritual uplift demanded by the human soul. Social life there, too, does not fill the craving for recreation and diversions of normal human beings. Country life as a whole must be reconstructed or redirected. It is now altogether too much dependent on the city life. Many factors must have a share in this change for the better; but none, certainly, can play so great a role in the movement as the new farm school.

Life in rural districts is agricultural. The new school must offer an agricultural education, i.e., must give expression first to good scientific farming, rendering ample requirements for the labor expended and, secondly, to a rural social life satisfactory to those living it. Such tasks are beyond the old school. The strong Consolidated school alone can solve them.

 

182. The Consolidated School Centre.—The new kind of school becomes the natural centre of all community enterprise. Wherever Consolidated schools spring up, there community undertakings seem to flourish. The very things for which country folk come to town can now be obtained at home. The school, to begin with, is better for farm purposes than any offered in town. For with it comes the impulses necessary to organize a community on a more permanent social and economic basis.

Let the school have a large assembly hall to be used for extension lecture courses, neighborhood social gatherings, farmers' institutes, boys' and girls' clubs, mothers' meetings, polling places, etc. The same buses bringing the children to school at public expense are used in some places to convey the parents to many of these meetings. This is perfectly right. For let us bear in mind: THE TASK OF THE NEW SCHOOL IS NOT LIMITED TO THE CHILDREN IN THE SCHOOL; IT REACHES INTO THE FARM HOME AND SEEKS TO BE HELPFUL THERE. ITS TASK IS TO MAKE COUNTRY LIFE MORE SCIENTIFIC AND THE PEOPLE MORE CONTENTED.

 

183. The School Structure.—The school structure should be built as a permanent school plant, having a large assembly hall, well-equipped class rooms, and agricultural laboratory. The basement is of incalculable benefit to the community, since advanced ideas in education have made it more than a coal-hole and a repository for all the trash and junk that accumulates during the year. Instead of being a catch-all, the basement now serves as the work-shop for the boys who have adopted vocational training as a part of their work. The girls, too, utilize the basement for their sewing and cooking rooms. The vocational training departments of Consolidated schools have proved popular innovations, and are, it is believed, largely responsible for the increased interest in general school work. Children who once desired to discontinue study now seek to continue through the higher courses. No steps should be taken towards building until after a consultation with educational experts, and then plans and specifications should be prepared by a competent schoolhouse architect.

 

184. The Plans.—The ideal way to plan a rural school is to employ a schoolhouse architect. This means an architect who knows the rural problem in its educational, industrial, social and sanitary aspects. He is worth the fee he asks, when one considers that in order to plan the schoolhouse properly he must view the site and design a building in harmony with the natural surroundings or with such landscape transformation as may be considered desirable. The time required for such a survey, as well as for a study of features which should be incorporated in the building, is always considerable. The drafting of sketches to allow the school board some choice should also be given consideration. Taking it all in all, this very desirable method is almost certain to prove most economical eventually.

 

185. Scientific Agriculture.—The study of scientific agriculture has taken a strong hold. Admirable results have been had in the vocational training departments. It has been found that the boys, in studying and working at the trades in school, carry their newly-discovered skill home and use it with good effect around the house and barn. They want to repair everything that is in any way imperfect. Naturally the parents, and hired hands and the grown-up brothers catch the spirit of interest and help place the neglected machinery and buildings back on a working basis. The girls, with their sewing and cooking classes, have also worked some effective reforms. Their experiments in domestic science are carried home, and the mothers, at first doubtful because of previous prejudices, soon find themselves interested in the new ideas on household economics and willingly set aside the old hum-drum methods of home maintenance. The result is that the whole atmosphere of the place is sweetened and life takes on a brighter glow. Now, fathers sit at home on winter nights and take a delight in going over the lessons with the children, not only to help them but also to absorb some of the information themselves.

Once the Consolidated school is established its worth is immediately proven. Not one of the schools that was abandoned when a Consolidated school was opened has been reopened. The Consolidated school has injected new life into rural schools. In athletics the country boy used to be content with an occasional game of ball or pitching horse-shoes. To-day, the increased number of boys attending the Consolidated schools, have basketball, football, baseball, track meets and all the open-air thrills. Athletics in the rural school have had a marked influence in checking the flow of the human tide towards the cities. Country boys are beginning to realize that, at home, they have practically every advantage known to the city youth and, as added capital, the wonderful effects of life in the open. It has been found that backward pupils, through the agency of athletics, music, and other diversions, have been brought to enjoy quickened pulses and enlivened mentality.

The Consolidated school is a community pride builder. Farmers who had opposed good roads and displayed their general lack of pride in the appearance of their houses and barns have been converted through the advent of the enlarged rural school.

First of all the school needs good roads in order that the buses may operate in all kinds of weather. The rural mail carrier also made a demand for better roads. Sometimes the big, new Consolidated school building looks like a diamond set in a sea of mud. The roads simply have to be improved. The question of improved highways edges its way into all rural conversations. Somehow it creeps in where two or more farmers are gathered together at the village store, around the blacksmith shop, or before or after church. Stories of how the bus stuck in the mud burns its way into the very conscience of the community. Something has to be done. Then comes the good roads meeting at the new schoolhouse. The result of the agitation has been that to-day the country is on the high tide of good road building. The improved roads and the new schoolhouse are pointed to with pride.

Men and women who said that the district school was good enough for them and should be good enough for their children came to the conclusion that nothing was too good for a community that had enough energy to seek better things in life.

The improvement of the highways has completely altered the early experiences of the township trustees and the busmen who convey the children to and from school. With good roads the busman is able to run his bus on a schedule like that used for railways. Mothers know that the bus will be along at 8.12 a.m., and they have their children ready. The teachers know that the bus will arrive at the school at 8.45 and they are there ready for the day's work. Busmen are held responsible for the delays and the entire order of the day's school business is carried on systematically. Good roads make punctuality possible.

 

186. Community Spirit.—It is not advisable to attempt consolidation in districts where community spirit is at a low ebb. Community spirit is the first essential. A reasonable degree of it is absolutely essential before beginning the work. A few men and women with the right kind of outlook can do much to inspire a community, and in time even the most conservative neighborhood may be ready for the new system. In many places consolidation is the result of slow but positive growth; in others it is almost spontaneous. Where the latter is the case there are sure to be many people who have permitted personal prejudice to sink for the greater good of community union. The first thing to ascertain, then, is whether or not the area under consideration has the spirit to work together for the good of all. This is more important than good roads for with it all obstacles will be surmounted or at least minimized.

 

187. Local Conditions.—The leaders in the movement must make a careful study of local conditions. The proposed district must not be too large. No transportation should be for more than five miles. Nor should the district be very small. A small district will not contain taxable property enough to run a good school without making a levy unbearably high. The typography of the land plays an important role. The worst hills, sticky roads, and most frequently flooded low-lands should be avoided, at least in laying out the transportation routes. Matters of school enrollment, condition of schoolhouses, rates of taxation necessary for school maintenance, etc., must be considered.

 

188. Size and Value of District.—The preliminary survey of the field should be based on these conditions: (1) The proposed district should show a school enrollment of two hundred, or, if attached to a village, at least one hundred and fifty. At least two hundred must be shown in a district of twelve square miles before the open country should undertake the organization with village privileges. (2) There should be a total taxable valuation of at least $300,000, a little less will do in some cases. From $350,000 to $400,000 is much better. These figures are intended chiefly for districts contemplating free conveyance of pupils.

 

189. Campaign of Education.—(1) There must be a preliminary canvass, suggested above, to ascertain the feeling in the community. Any public-spirited man or set of men can do this.

(2) Such a canvass should be followed up with a publicity campaign. The men who have undertaken to lead the movement should send to the Ontario Department of Education for bulletins from which to clip and compile enough material to make a fair, concise statement of fact. This should then be printed and put into the hands of the voters in the proposed district.

(3) After all have had time to study the question, public meetings must be held. To these should be invited experts from the Ontario Department of Education. Such meetings will offer opportunity for the discussion of many things not clear to the average voter.

(4) As a last step the campaign must be carried into every district within the proposed consolidation. An excellent idea is to give at least one lecture, (illustrated if possible with stereopticon slides), in every schoolhouse.

Consolidation has become more favorably fixed in the minds of the people until now opposition to it is considered a thing of the past. Looking backward upon these years of experience it can safely be said that consolidation has accomplished among other things the following:—

(1) It has established a deeper confidence in the school, man's most vitalizing agency.

(2) Brought first-class schools to the country pupils, and overcome the necessity of country pupils leaving their homes to go to city schools.

(3) Made homes in the country more desirable, and thereby raised the value of real estate.

(4) Erased boundary lines, and worked for the common good of all people.

(5) Stimulated the "getting together" habit.

(6) Introduced the "transportation idea" and supplied means of travel.

(7) Caused, and is causing better roads to be built.

(8) Equalized taxation for school purposes and the advantages which result therefrom.

(9) Provided more funds for school purposes.

(10) Expended school money more judiciously.

(11) Awakened a keener interest in school elections, through non-partizan, as in general elections.

(12) Eliminated a multiplication of district trustees of but ordinary qualifications.

(13) Created in their place a Board of Education, consisting of five very competent members.

(14) Abandoned poor, isolated buildings.

(15) Erected new, modern, central school buildings with improved lighting, heating and ventilation systems.

(16) Furnished these buildings with large halls, tinted walls and ample blackboards; and equipped them with pianos, graphophones, single desks, work tables and other durable furniture, as well as adequate apparatus, material and supplies.

(17) Kept these buildings in first-class condition.

(18) Expanded school grounds to a size which encourages organized outdoor play, and the planting of school gardens.

(19) Graded these grounds, put down cement walks, and installed sanitary drinking fountains.

(20) Sought the assistance of the ablest students in rural education which the country affords.

(21) Introduced a high quality of school supervision.

(22) Employed expert supervisors in primary methods, music, art, physical education, manual training, agriculture and household science and domestic arts.

(23) Raised the standard of efficiency on the whole teaching force.

(24) Retained special help in work with delinquent pupils, and engaged the services of trained nurses to examine each pupil at least once a week.

(25) Held a liberal number of male teachers in the grammar grades, most of whom are making teaching their life's work.

(26) Put fewer pupils with each teacher, thereby giving the pupils more personal attention.

(27) Resulted in a larger enrollment.

(28) Increased the percentage in daily attendance of this increased enrollment.

(29) Increased the percentage of promotion in this increased enrollment.

(30) Added at least an average of ten days' attendance per pupil per year.

(31) Reduced the percentage of failures and retentions more than one-third.

(32) Overcame, to a considerable extent, the tendency to quit school before graduating.

(33) Made a standard rural school possible.

(34) Inspired a high percentage of pupils of the elementary schools to attend High School.

(35) Reduced truancy to a minimum.

(36) Improved the classification and grading of the school.

(37) Brought parents and adults closer to the real interests of the children.

(38) Obtained the good will and co-operation of its patrons.

(39) Economized the time of pupils, teachers and patrons.

(40) Overcame local prejudices; made the remote country child associate with children of other localities, giving him a broader view, and extended his circle of friends and acquaintances.

(41) Created social centres, with their libraries, literary societies, business and industrial organizations, athletic associations, music and amusements.

(42) Fostered a taste for the best that life can give and enriched the whole life of the people.

(43) Placed a strong class leader in every school.

(44) Aroused enthusiasm for healthful rivalry and fair competition in all school work.

(45) Made pupils progressive, content, comfortable and happy.

(46) Taught punctuality and dependability by example.

(47) Safeguarded the health of the children.

(48) Emphasized a high moral tone.

(49) Formed a better basis for the study of the school as a factor of economics and sociology.

(50) Made better school legislation necessary.

SELECTING AN ARCHITECT

 

190. Selecting an Architect.—There are two methods by which architectural services may be had; direct employment and competition. Direct employment should be entered into only where the architect is licensed and is a specialist in school architecture, and his competency and integrity well known.

The competitive method stimulates effort, and affords a variety of ideas and plans to select from, and doubtless will prove advantageous providing the board avail themselves of an expert to assist them in making their selection.

In conducting architectural competitions it is essential to adopt a clear and definite programme, stating conditions, requirements, and amount to be expended for the building. The drawings submitted need only be blueprints, copied from pencil sketches, showing only plan arrangements. Drawings should not be considered if they show any marks disclosing the identity of the author. Copies of sketches should be sent to the Ontario Department of Education and they will assist boards in making a selection.

The competitive method should be employed where the cost of the school is $10,000 or over.


INDEX TO LETTERPRESS REFERENCES

PageParagraph
  
Acoustics6991
Agriculture200143
Agriculture rooms7096
Air test210164
Air channels212170
Air, fresh required210164
Architect, selecting224190
Aspect365
Aspect, N. & N. W.367
Aspect, W. & S. W.368
Aspect, E. & S. E.369
Aspect, N. E. & E.3610
Assembly hall6685
Assembly room7093
Assembly room, advantages of6786
Assembly room, location of6887
Assembly room, seating6888
  
Basement3712
Bacteria, at work88135
Beamed ceilings4934
Bilateral lighting4627
Blackboards5242
Blackboards, composition5245
Blackboards, color of5448
Blackboards, glass5346
Blackboards, height of5449
Blackboards, liquid slate5447
Blackboards, slate5243
Boilers213173
Boilers, cast-iron sectional213174
Boilers, fire-box213176
Boilers, water-tube213177
Breeze windows4626
  
Construction of school33 
Chalk troughs5450
Class rooms4016
Coat rooms5856
Cooking rooms74103
Combination heating207160
Consolidated schools218180
Consolidated school campaign221189
Consolidated school centre219182
Consolidated school community221186
Consolidated school plans219184
Consolidated school local221187
Consolidated school structure219183
Consolidated school life218181
Consolidated school districts221188
  
Damp course4015
Desk spacing4219
Drinking fountains81116
Drinking cups84129
Disposal fields for sewage91141
Doors6372
Doors, sizes of6373
Doors, outside6376
Drying clothing5961
  
Elementary class rooms4217
Engineer, employment of206158
  
Floors6063
Floors, corridor6269
Floors, composition6270
Floors, cost of composition6270
Floors, deadening6064
Floors, double6065
Floors, hardwood6266
Floors, laying6267
Floors, finishing of6268
Floors, gymnasium77109
Fans212169
Fireproofing82121
Flag201151
Filling trenches91140
  
Ground air344
Gravity ventilation210165
Gymnasium77107
Gymnasium, shape of room77107
Gymnasium wall-boards77108
Gymnasium storage79110
  
Heating and ventilating205 
Hardware6373
Height of class rooms4220
High school rooms6992
Heating, warm air system206159
Heating, combination system207160
Heating, hot water system209163
Heating, hot blast system211167
Heating, fan system212168
Heating suggestions205157
Heating regulations206158
Heating, two pipe system208162
Household science rooms7098
Household science and domestic art73102
  
Hollow tile83121½
Humidity212171
  
Industrial departments7095
  
Jacketed furnace206159
Janitor service215178
  
Kaustine closets87133
Kaustine tanks87133
  
Laboratory7199
Laboratory, combination73101
Laboratory equipment72100
Lighting of class rooms2523
Light required2524
Library5755
Liquifying chamber90138
Liquifying sewage90137
Locker rooms5857
Locker rooms in basement5858
Lockers, individual5859
Lockers in corridor5860
Lunch rooms77106
  
Manual training rooms7097
Model apartments76104
Motion pictures204156
Music202133
  
Painting and decorating5552
Playgrounds3631
Platforms, height of6989
Prismatic glass4830
Privies84130
Privies, location of86131
Phonograph201152
  
Recitation rooms7094
Red Cross closets87132
Rooting5653
  
School grounds342
School building33 
Schedule of class-room sizes4218
Seating capacity of class-rooms4321
Sky-lighting4829
Sewage disposal88134
Sludge90136
Syphon90139
Sunlight366
Stereopticon203154
  
Teachers' private room5754
Telephones204155
Toilet accommodation79111
Toilet room walls79113
Toilet rooms for high schools81119
Toilet room partitions81120
Transoms over doors6374
  
Unilateral lighting4625
Urinals81118
  
Ventilation systems210164
Ventilation, gravity210165
  
Water closets79114
Water closets, number required79115
Waste paper baskets83124
Water supply83127
Waterproofing septic tanks92142
Wells83128

INDEX TO ADVERTISEMENT REFERENCES

PageParagraph
Aeroshade Co.5041
  
Beaver Board Co., Ltd.5244
Brantford Rooting Co., Ltd.5653
Brown-Jarvis Co.5243
5653
  
Canada Foundries and Forgings, Limited206159
Carmichael Waterproofing Co., Limited3712
6270
6371
Cluff Brothers70114
Columbia Graphophone Co.201152
Canadian Independent Telephone Co., Ltd.204155
C. A. Dunham Co., Ltd.207161
  
Dominion Paint Works Ltd.5552
International Varnish Co., Ltd.5552
Italian Mosaic and Marble Co. of Canada, Ltd.6269-70
  
Porcelain Products, Ltd.81120
  
Canadian Johns-Manville Co., Ltd.6064
5653
  
Johnson Temperature Regulating Co., Ltd.212172
  
Kaustine Co., Ltd.87133
  
Laidlaw, R. & Co., Ltd.6266
6372
Leonard, E. & Sons, Ltd.213175-177
  
Meadows, The Geo. B.5859
Mott Co., Ltd.79114
Montgomery, The Faultless Hose Reel Co., Ltd.83122
Moyer, E. N. & Co., Ltd.4321
206159
5244
  
National Equipment Co., Ltd.90139
84128
North American Contracting & Manufacturing Co., Ltd.5450
  
Pathescope of Canada, Ltd.203154
204156
  
Roberton-Olsen, Ltd.205157
82121
  
Scythes & Co., Ltd.201151
Sheldon, E. H. & Co.71, 7299, 100
Spalding, A. G. & Bros.77107
Spencer Heater Co., Ltd.211, 212167-169
Springer Lock Mfg. Co., Ltd.6375-76
Steel & Radiation, Ltd.213174-177
Stone & Wellington200147
Sturtevant, B. F. Co., of Canada, Ltd.211, 212167-169
Sun Brick Co., Ltd.83121½
  
Taylor-Forbes Co., Ltd.213174-177
Toronto Plate Glass Importing Co., Ltd.4830
Trussed Concrete Steel Co. of Canada, Ltd.82121
  
Waterman-Waterbury Mfg. Co. Ltd.206159
84128-129
Welch, W. M. Mfg. Co.200144

INDEX TO PLANS

Plan No.Page
1One Teacher School, Deslisle93
2One Teacher School, Warman94
3One Teacher School, Pecora95-96
4One Teacher School, Barton97-98
5One Teacher School, Sutherland99
6One Teacher School, Spir100-101
7One Teacher School, Belwood102-104
8One Teacher Consolidated School105-107
9One Teacher School, United States Bureau of Education108
10One Teacher School, United States Bureau of Education109-110
11Two Room School, Hague110-111
12Two Room School, Silver Lake111-112
13Two Room School, Humbolt113-115
14Two Room School, Winona115-116
15Four Room School, Wynyard117-119
16Two or Four Room School, West Hill120-123
17Four Room School, Duck Lake124-126
18Eight Room School, Davidson126-130
19Four Room School, Waterous131-133
20Four Room School, Elmira134-135
21High School, Beamsville135-140
22Seven Room School, Silver Springs141-144
23Eight Room School, Newark145-146
24Victoria School, Saskatoon147-152
25Victoria School No. 2, Saskatoon153-156
26Ten Class Rooms, Belvidere High School157-158
27Melfort School159-167
28Eight Room School, Welland168-172
29Eight Room School, Consolidated, Fond du Lac173-176
30Collegiate Institute, Yorkton177-182
31Eleven Room School, Ryerson, London183-186
32Thirteen Room School, Washington187-188
33Barrie School189-191
34Fourteen Room School, Steel192-195
35Sixteen Room School, East Orange196-197
36Twenty Room School, Hutcheson198-199

INDEX TO ADVERTISEMENTS

Name.Page.
Aeroshade Co.18
Art Metropole, Ltd.238
 
Beaver Company, Ltd.242
Bishopric Wall Board Co., Ltd.238
Booth-Coulter Copper & Brass Co., Ltd.13
Brantford Roofing Co., Ltd.3
Brown-Jarvis Co.21
 
Canada Foundries & Forgings, Ltd.252
Canadian Independent Telephone Co.260
Canadian Johns-Manville Co.243
Carmichael Waterproofing Co., Ltd.246
Cluff Brothers244
Cluff Brothers245
Columbia Graphophone Co.24
Conduits Company, Limited259
 
Dominion Paint Works, Limited261
Dunham, C. A. Co., Ltd.6
 
Frid Construction Company, Limited253
 
Geo. B. Meadows Toronto Wire, Iron & Brass Works Co.250
 
Hepburn & Disher, Ltd.21
 
Imperial Bank of CanadaInside Cover
International Varnish Co., Ltd.251
Italian Mosaic and Marble Co. of Canada16
 
Johnson Temperature Regulating Co. of Canada19
 
Kaustine Company Ltd.7
 
Laidlaw, R., Lumber Co.233
Leonard, E. & Sons, Ltd.234
 
Merriam, G. & C. Co.13
Montgomery Faultless Hose Reel Co.16
Mott Co., Ltd.10
Moyer, E. N. Co., Ltd.230
Moyer, E. N. Co., Ltd.231
 
National Equipment Co., Ltd.14
National Equipment Co., Ltd.15
North American Contracting & Manufacturing Co.235
 
Pathescope of Canada, Ltd.256
Pathescope of Canada, Ltd.257
Pedlar People, Limited258
Perry Pictures Company249
Porcelain Products, Limited262
Porcelain Products, LimitedBack Cover
Port Credit Brick Co., Ltd.5
 
Roberton-Olsen, Limited262
 
Schultz Brothers Co., Ltd.4
Scythes & Company, Ltd.16
Sheldon, E. H. & Company247
Spalding, A. G. & Bros.15
Spencer Heater Co. of Canada, Ltd.23
Springer Lock Mfg. Co.8
Steel and Radiation, Ltd.17
Stone & Wellington248
Sturtevant, B. F. Company of Canada, Ltd.255
Sun Brick & Tile Co., Ltd.9
 
Taylor-Forbes Company, Limited240
Taylor-Forbes Company, Limited241
Toronto Plate Glass Importing Co., Ltd.13
Trussed Concrete Steel Company254
Tuttle & Bailey Mfg. Co., Ltd.12
 
United Electric Co.230
 
Von Duprin (Springer Lock Mfg. Co.)8
 
Waterman-Waterbury Mfg. Co., Ltd.236
Waterman-Waterbury Mfg. Co., Ltd.237
Welch, W. M., Mfg. Co.232
William Peace Co, Ltd.248
Wilson, The J. G. Corporation1

See Page 43, Par. 21; Page 52, Par. 44; Page 206, Par. 159


See Page 43, Par. 21; Page 52, Par. 44; Page 206, Par. 159


See Page 200, Par. 144


See Page 62, Par. 66; Page 63, Par. 72


See Page 213, Par. 175-176-177


See Page 54, Par. 50


See Page 206, Par. 159


See Page 84, Par. 128-129




See Page 213, Par. 174-175-176-177


See Page 213, Par. 174-175-176-177


See Page 52, Par. 44


See Page 56, Par. 53; Page 60, Par 64


See Page 79, Par. 114


See Page 79, Par. 114


See Page 37, Par. 12; Page 62, Par. 70; Page 63, Par. 71


See Page 71, Par. 99; Page 72, Par. 100


See Page 200, Par. 137



See Page 58, Par. 59.


See Page 55, Par. 52


See Page 206, Par. 159



See Page 82, Par. 121


See Page 211, Par. 167; Page 212, Par. 168, 169


See Page 204, Par. 156


See Page 203, Par. 154




See Page 204, Par. 155


See Page 55, Par. 52


See Page 82, Par. 121; Page 205, Par. 157


 

See Page 81, Par. 120


Transcriber's Notes

The text is as in the original, except where minor typographic errors have been corrected.

The advertisements at the beginning and end of the book have been reproduced as images in the graphical formats in order to preserve the original typography and graphics. No effort has been made in the text version to reproduce the design of these pages, and the sole aim has been to present the text.

Better appreciation of the detailed architectural drawings may require a large format display. In the HTML version, a larger version of many of the images may be viewed by clicking on the image. Unfortunately the resolution of many of the original architectural drawings has been reduced first by reduction to be printed on the book page and then by the scanning of that page to create the images offered here. It has been necessary to compromise between removing the background colour and maintaining detail in the drawings.

[The end of Modern Schoolhouses: With Plans and Illustrations of the Newest in Schoolhouse Architecture by W. W. (Walter William) La Chance]